• News
  • Projekte
    • Galerie
    • Liste
    • Büro- / Gewerbebauten
    • Gesundheitsbauten
    • Industriebauten
    • Schulbauten
    • Spitalbauten
    • Wohnbauten
    • Wettbewerbe
  • Design-Build
  • Firma
  • Team
  • Jobs
  • Whatsnext
  • Publikationen
  • Kontakt
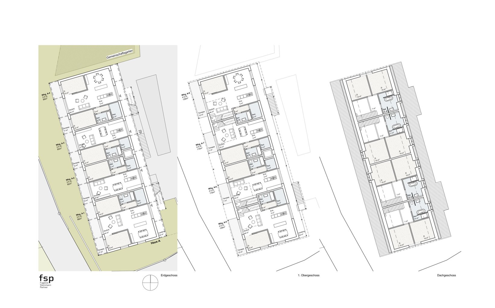
  • Wohnüberbauung Endingen

    fsp: Im Dorf Zuhause.

    Im Auftrag von zwei Bauunternehmungen wurde der Studienauftrag für die Überbauung mehrerer Parzellen in Endingen in der Ortbildschutzzone erarbeitet. Dabei waren neben der städtebaulichen und architektonischen Konzeption auch Vorschläge zu Wohnungsmix, Zielgruppen und Markpositionierung zu erarbeiten.

    In Anbetracht des beliebigen Konkurrenzangebotes, empfehlen wir ein Projekt zu realisieren, welches eine gewisse Innenorientierung aufweist und dadurch eine Wohnkultur des Miteinander ermöglicht.

    Als Leitmotiv gilt dabei der Dorfbrunnen, welcher als ideologisches Zentrum den Mittelpunkt der Anlage definiert und zugleich gemeinsamer Identifikationsort ist. Um dieses Zentrum orientieren sich 4-5 langgestreckte Baukörper, welche mit ihrer Ausrichtung und lockeren Setzung die Baustrukturen im Ort fortführen. Um diese Gebäude ideal in den Kontext und die dörflichen Strukturen einzubinden orientiert sich die Gestaltung mit Satteldächern sowie Holz- und Putzfassaden am ortsbaulichen Umfeld.

    Damit eine möglichst breite Zielgruppe angesprochen und damit eine gewisse Diversität sichergestellt werden kann, wurden unterschiedlichste Wohntypen und -formen von Geschosswohnungen, Maisonetten bis hin zu Reihenhaustypen entwickelt.

    • Ort: Endingen
    • Kategorie: Wohnbauten
    • Baubeginn:
    • Fertigstellung: 2020
    • Status: Wettbewerb
    • Bauherrschaft: Birchmeier AG + Keller AG
    • Gesamtleitung fsp: Ivo Lenherr
    • Projektleitung fsp: Alexander Christen
    • Team fsp: Alexander Christen
    Wohnüberbauung Endingen
    Endingen
    Wohnbauten
    None
    2020
    Wettbewerb
    84100
fsp*. Wir bauen nicht für uns.