• News
  • Projekte
    • Galerie
    • Liste
    • Büro- / Gewerbebauten
    • Gesundheitsbauten
    • Industriebauten
    • Schulbauten
    • Spitalbauten
    • Wohnbauten
    • Wettbewerbe
  • Design-Build
  • Firma
  • Team
  • Jobs
  • Whatsnext
  • Publikationen
  • Kontakt
  • Wiesensau Pilotprojekt Mosen

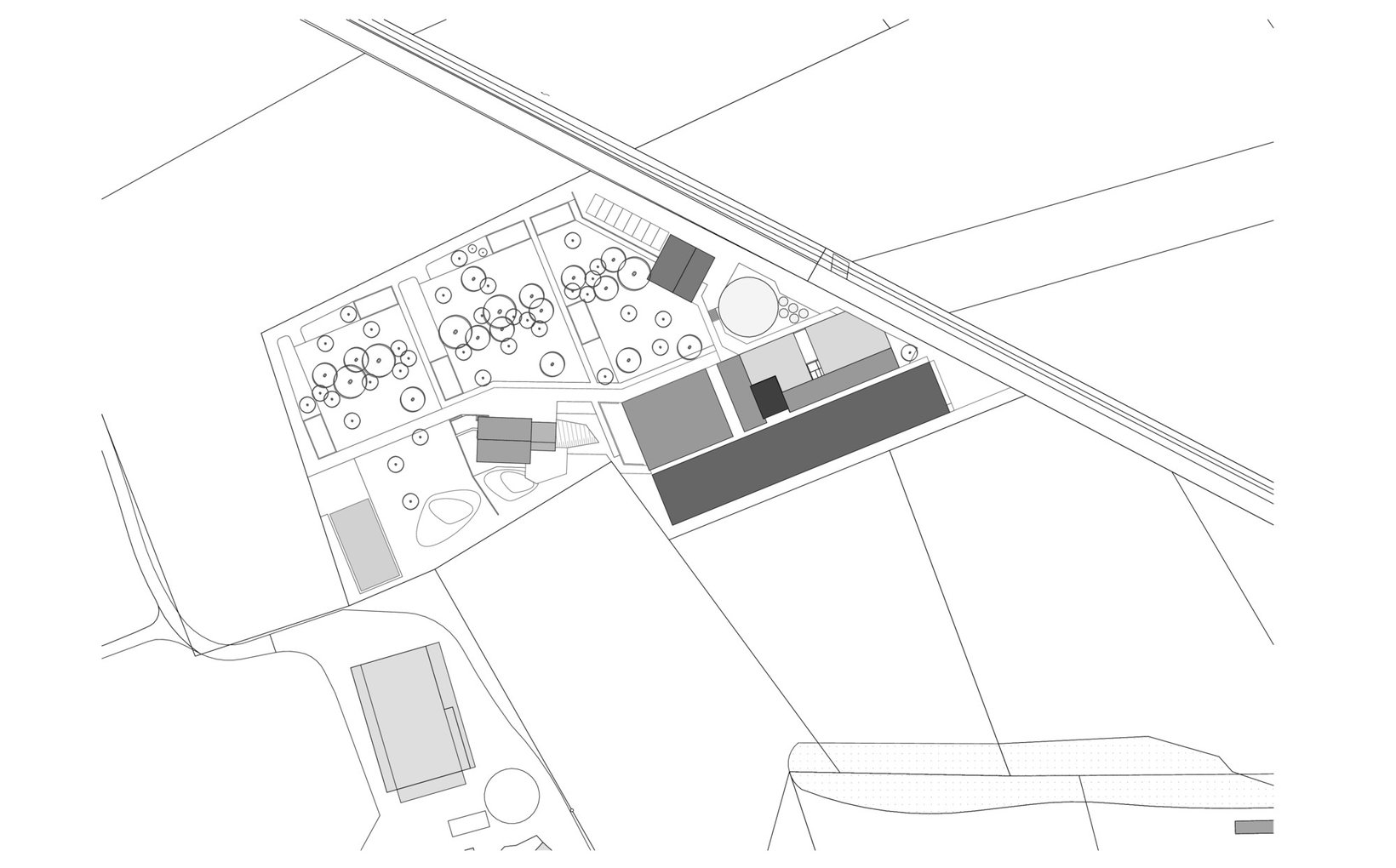
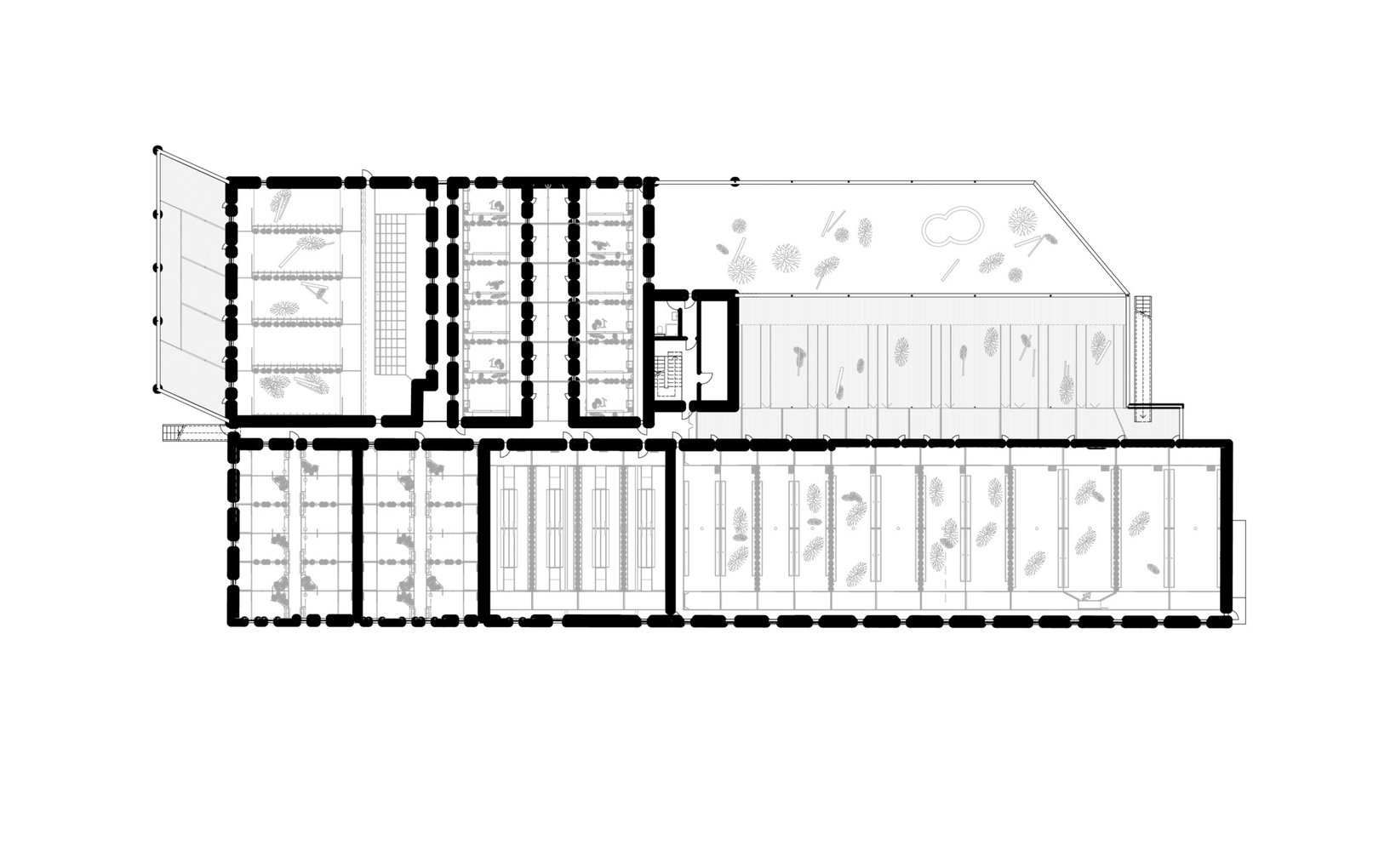
    Ziel: Das Konzept für die Wiesensau AG zum Zucht- und Mastbetrieb sieht vor den Schweinen mehr Lebensqualität und vor allem mehr Platz zu geben und ermöglicht ihnen wieder ihren Instinkten und ihrer Neugier zu folgen. Ein Wiesenschwein bewegt sich frei auf der Wiese um zu suhlen und zu wühlen.

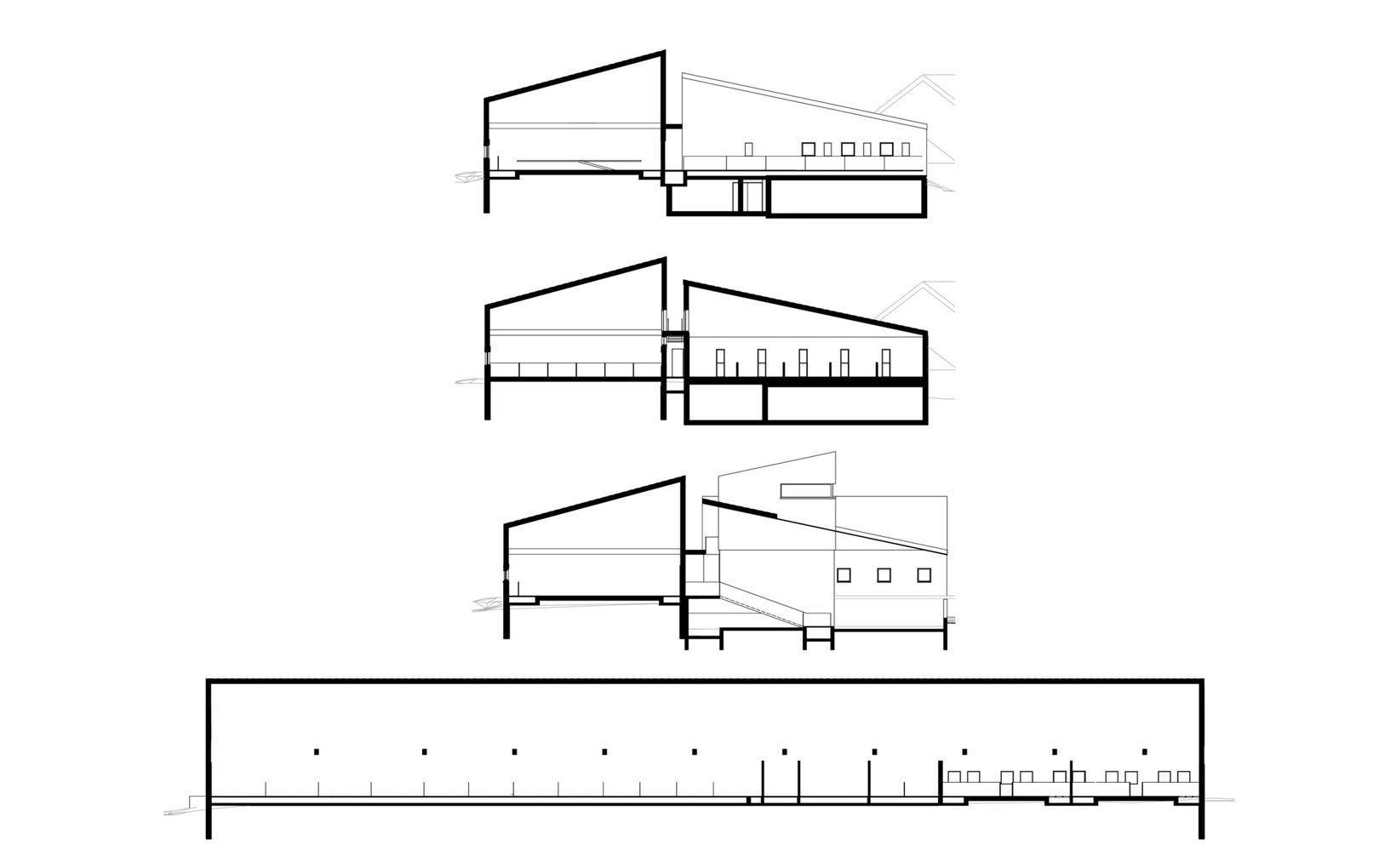
    Problemstellung: Das Bauen ausserhalb der Bauzone und deren Eingliederung ins Landschaftsbild ist äusserst anspruchsvoll. Zudem stellt das Bauen im Bestand unter laufendem Betrieb eine zusätzliche Herausforderung dar. Der modulare Systembau ermöglicht die Reproduktion und Sanierung bestehender Betriebe.

    fsp: Der Umbau eines Schweinestalls und die technische Aufrüstung unter Berücksichtigung von tier- und artgerechter Haltung von Schweinen dominiert die Planung. Das modular angedachte Projekt schafft die Grundlage als Pilot für eine Vorserie von 20 – 30 Wiesensau-Betrieben. Die Erkenntnisse aus deren Planung fliessen dann in die Multiplikation ab 2020.

    • Ort: Luzern
    • Kategorie: Büro- / Gewerbebauten
    • Baubeginn:
    • Fertigstellung: 2018
    • Status: Abgeschlossen
    • Partner fsp: Wiesensau AG
    • Gesamtleitung fsp: Ivo Lenherr
    • Projektleitung fsp: Urthe Aust
    Wiesensau Pilotprojekt Mosen
    Luzern
    Büro- / Gewerbebauten
    None
    2018
    Abgeschlossen
    65200
fsp*. Wir bauen nicht für uns.