• News
  • Projekte
    • Galerie
    • Liste
    • Büro- / Gewerbebauten
    • Gesundheitsbauten
    • Industriebauten
    • Schulbauten
    • Spitalbauten
    • Wohnbauten
    • Wettbewerbe
  • Design-Build
  • Firma
  • Team
  • Jobs
  • Whatsnext
  • Publikationen
  • Kontakt
  • Werkhof Münsingen

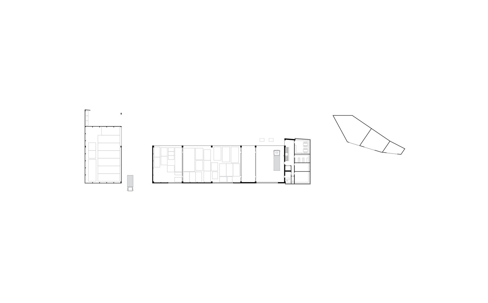
    Ziel: Der bestehende unzeitgemässe Werkhof soll ersetzt werden. Gesucht sind Lösungen welche höchste Anforderungen hinsichtlich Funktionalität, Ökonomie, Ökologie und Gestaltung erfüllen.

    Problemstellung: Der Perimeter des Areals ist äusserst knapp. Der interne Verkehrsfluss als auch der Anschluss an die anliegende Kantonsstrasse stellen besondere Herausforderungen dar.

    fsp: Ziel des Entwurfs bildet die weitgehende Vereinigung der verschiedenen Funktionen unter einem gemeinsamen Dach. Die durchlaufende, expressive Kontur dieses Daches folgt dem funktionalen Inhalt mit seinen spezifischen Raumhöhen. Das städtebauliche Konzept ist inspiriert von der Dualität der Rahmenbedingungen, dem linearen Verkehrsstrom und der natürlichen Form entlang der Hangkante: An der Kantonsstrasse als durchgehende lineare Gebäudeflucht, im hinteren Bereich mit einer den funktionalen Bedingungen folgenden Raumgliederung. Das gleiche Prinzip kommt in der Längsfassade zum Ausdruck und macht somit die Grundidee auch in der Gebäudeansicht erkennbar.

    • Ort: Münsingen
    • Kategorie: Industriebauten
    • Baubeginn: 2013
    • Fertigstellung: 2013
    • Status: Abgeschlossen
    • Bauherrschaft: Bau-, Verkehrs- und Energiedirektion des Kantons Bern
    • Gesamtleitung fsp: Markus Schärer
    • Projektleitung fsp: Bernhard Meyer
    • Team fsp: Ines Arnau, Selim Manjusak
    Werkhof Münsingen
    Münsingen
    Industriebauten
    2013 4.Preis
    2013
    Abgeschlossen
    20501
fsp*. Wir bauen nicht für uns.