• News
  • Projekte
    • Galerie
    • Liste
    • Büro- / Gewerbebauten
    • Gesundheitsbauten
    • Industriebauten
    • Schulbauten
    • Spitalbauten
    • Wohnbauten
    • Wettbewerbe
  • Design-Build
  • Firma
  • Team
  • Jobs
  • Whatsnext
  • Publikationen
  • Kontakt
  • Swiss Engine Shop Flughafen Zürich

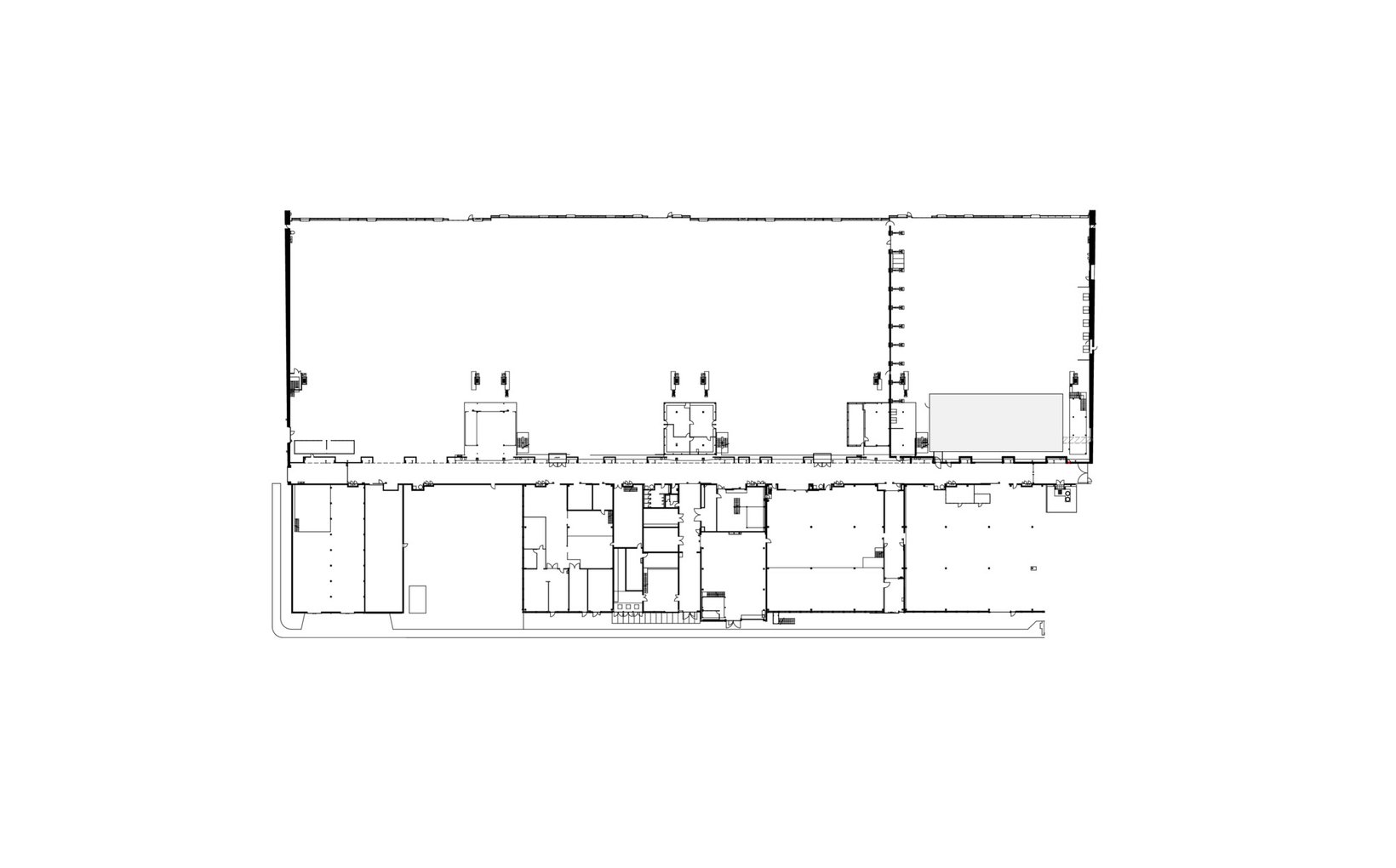
    Ziel: Für die Swiss wurde im Bereich der Werft 2 Tor 141 ( Hangar Position T24) ein QEC-Shop geplant. Der Engine Shop definiert sich als eine Werkstatt, welche für Triebwerke GE-90, PW1100G, sowie PW1524G konzipiert werden soll. Diese sollen hier gewartet, umgerüstet und temporär bis zum Wiedereinbau gelagert werden.

    Problemstellung: Insbesondere lag die Herausforderung bei den bestehenden technischen Installationen. Möglichst wenig Eingriffe in den Bestand sowie geringe Adaptierungen waren hier von Priorität. Die Stahl-Tragkonstruktion zielte auf eine kosten- und funktionsoptimierte Lösung ab.

    fsp: Der entstandene Shop ordnet sich in die bestehende Struktur ein, hier sind vor allem die Dach- bzw. Konstruktionshöhen der bestehenden Werft ausschlaggebend. Die Höhe der neuen Werkstatt soll Platz für zwei übereinanderstehende Triebwerke aufweisen. Der Flächenbedarf wurde einerseits auf die Triebwerksgrössen und die benötigten Arbeitsplatzverhältnisse, aber auch auf den bestehenden Grundriss der Werft, sowie die Positionierung der Flugzeuge ermittelt worden.

    Die Tragkonstruktion ist ein Industrie-Stahlbau, welcher sich als ein modulares System, auf die benötigten Spannweiten auslegt. Der Engine Shop ist als ein autarkes Gebäude konzipiert worden.Die Anforderungen bzw. Bedürfnisse der Bauherrschaft wurden im Zuge eines Lastenheftes zusammengefasst und für die Planung herangezogen.

    • Ort: Zürich Flughafen
    • Kategorie: Industriebauten
    • Baubeginn: 2019
    • Fertigstellung: 2020
    • Status: Realisiert
    • Bauherrschaft: Swiss International Air Lines Ltd
    • Gesamtleitung fsp: Ivo Lenherr
    • Projektleitung fsp: Urs Huber
    Swiss Engine Shop Flughafen Zürich
    Zürich Flughafen
    Industriebauten
    None
    2020
    Realisiert
    77500
fsp*. Wir bauen nicht für uns.