• News
  • Projekte
    • Galerie
    • Liste
    • Büro- / Gewerbebauten
    • Gesundheitsbauten
    • Industriebauten
    • Schulbauten
    • Spitalbauten
    • Wohnbauten
    • Wettbewerbe
  • Design-Build
  • Firma
  • Team
  • Jobs
  • Whatsnext
  • Publikationen
  • Kontakt
  • Strassenverkehrsamt Schaffhausen

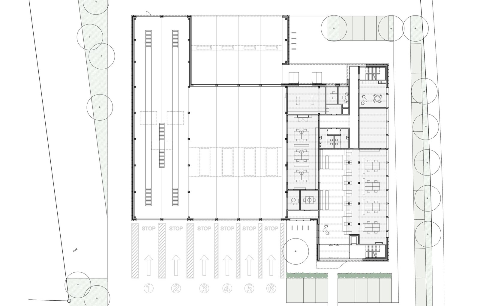
    Ziel: Mit einem Neubau an der Solenbergstrasse in Herblingen sollen die Schalter- und Büroräumlichkeiten des Strassenverkehrs- und Schifffahrtsamts sowie sämtliche Prüfbahnen unter einem Dach vereint werden. Mit dem Neubau sollen die Abläufe vereinfacht und die Kundendienstleistungen optimiert werden.

    Problemstellung: Die Herausforderung bestand darin die sehr unterschiedlichen Nutzungen Bürotrakt, Prüfhalle und Kundenbereiche in einer architektonischen Gesamtfigur zu vereinen und dabei eine klare Adressierung und Lesbarkeit der Gesamtanlage zu erreichen. Darüber haben die technischen Anforderungen wie Verkehrsführung, Schleppkurven und technische Ausstattung der Prüfbahnen einen hohen Stellenwert. 

    fsp: Die Volumetrie wird in drei Gebäudeteile gegliedert: Prüfhalle, Zwischentrakt und Administrationstrakt. Diese Trakte sind jeweils räumlich gegeneinander verschoben und schaffen so auf dem Areal eine logische und funktionale Zonierung. Die verschiedenen Verkehrsströme (Besucher, Kunden, Prüffahrzeuge, Personal, Fahrschule) werden bereits an der Arealzufahrt entflochten. Der Neubau ist ab Erdgeschoss als Holzbau konstruiert. Die hinterlüftete Holzfassade wird in verschiedene horizontale Schichten gegliedert, welche die drei Gebäudeteile zu einer gestalterischen Einheit zusammenfassen. Die Sockelzone ist gegen das angrenzende Terrain mit Faserbetonelementen verkleidet. Im Bereich der Fenster sind die geschlossenen Wandelemente mit Mehrschichtplatten und vertikalen Lisenen statisch im Rhythmus von 1.40m entsprechend den Deckenelementen strukturiert. In dem darüber liegenden Bereich der Brüstungen werden die Holzelemente jeweils geschossweise abwechselnd schräg in asymmetrischer Dreiecksform angeordnet. Damit erhält die Fassade ein dynamisches Bild, welches an ein Getriebe erinnert und identitätsstiftend für den Neubau wird.

    • Ort: Schaffhausen
    • Kategorie: Büro- / Gewerbebauten
    • Baubeginn: 2023
    • Fertigstellung: 2024
    • Status: Realisiert
    • Bauherrschaft: Kanton Schaffhausen, Hochbauamt, Beckenstube 11, 8200 Schaffhausen
    • Gesamtleitung fsp: Alexander Christen
    • Projektleitung fsp: Urs Huber
    • Team fsp: Sheila Ebinger
    Strassenverkehrsamt Schaffhausen
    Schaffhausen
    Büro- / Gewerbebauten
    1. Rang / 2020
    2024
    Realisiert
    83500
fsp*. Wir bauen nicht für uns.