• News
  • Projekte
    • Galerie
    • Liste
    • Büro- / Gewerbebauten
    • Gesundheitsbauten
    • Industriebauten
    • Schulbauten
    • Spitalbauten
    • Wohnbauten
    • Wettbewerbe
  • Design-Build
  • Firma
  • Team
  • Jobs
  • Whatsnext
  • Publikationen
  • Kontakt
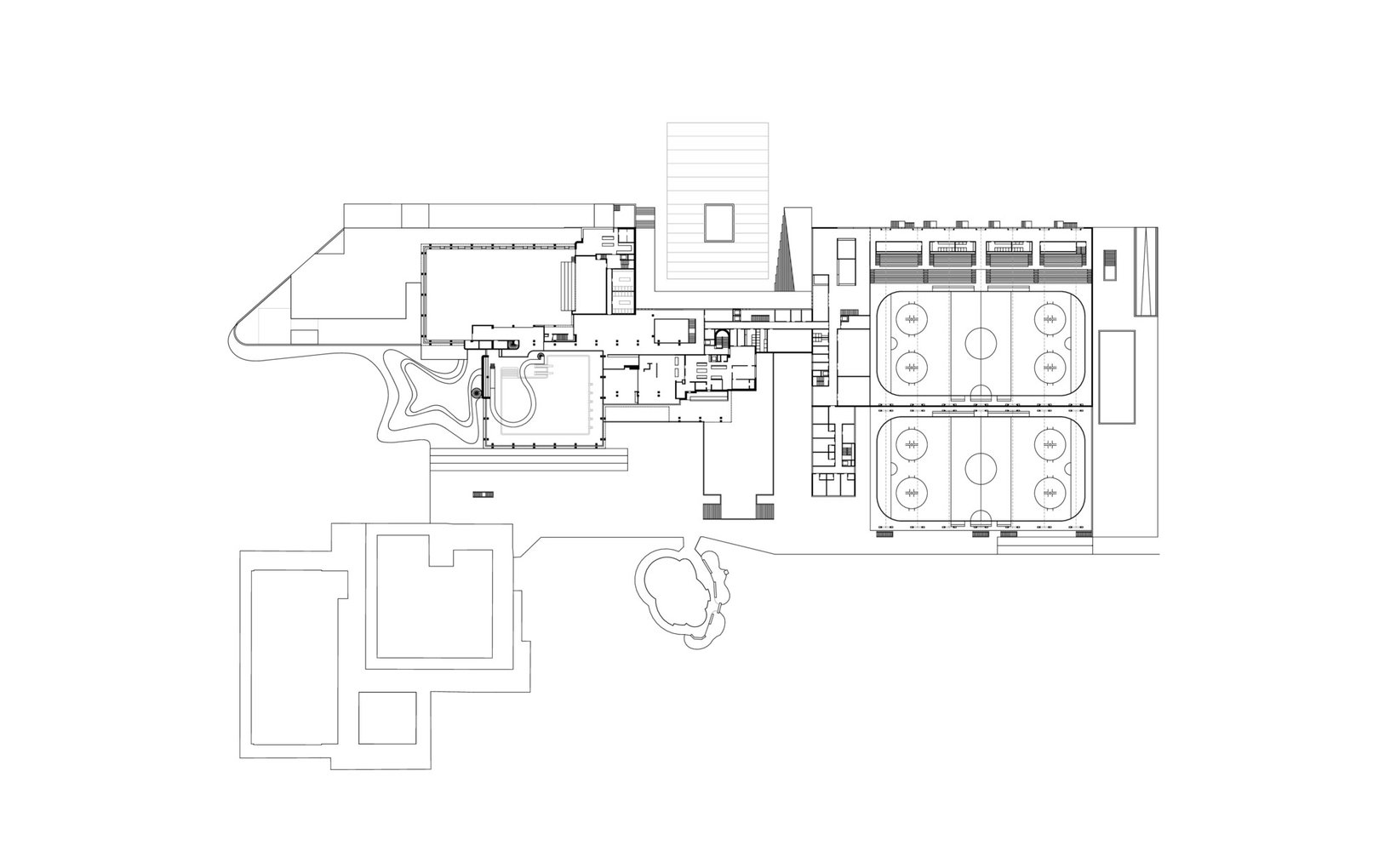
  • Sport- und Erholungszentrum Tägerhard

    Ziel: Für das regional bedeutsame Sportzentrum wird mit der Integration der neuen Eishalle ein frischer Auftritt geschaffen.

    Problemstellung: Betriebliche Ansprüche, Attraktivität für Besucher, bestehende Bauteile und komplexe technische Anforderungen werden ganzheitlich vereint.

    fsp: Das Konzept geht von den Qualitäten des Bestandes aus und stellt diesen mit den Erweiterungsbauten in ein neues Licht. Die bestehenden Bauten wie auch die nach Aussen zurückhaltend in Erscheinung tretende Eishalle werden von neuen, wie Sockel wirkenden Flachbauten gekonnt zusammengebunden.

    • Ort: Wettingen
    • Kategorie: Büro- / Gewerbebauten
    • Baubeginn:
    • Fertigstellung: 2011
    • Status: Abgeschlossen
    • Bauherrschaft: Gemeinde Wettingen
    • Gesamtleitung fsp: Heinz Fugazza
    • Projektleitung fsp: Bernhard Meyer
    Sport- und Erholungszentrum Tägerhard
    Wettingen
    Büro- / Gewerbebauten
    2011 2.Preis
    2011
    Abgeschlossen
    17900
fsp*. Wir bauen nicht für uns.