• News
  • Projekte
    • Galerie
    • Liste
    • Büro- / Gewerbebauten
    • Gesundheitsbauten
    • Industriebauten
    • Schulbauten
    • Spitalbauten
    • Wohnbauten
    • Wettbewerbe
  • Design-Build
  • Firma
  • Team
  • Jobs
  • Whatsnext
  • Publikationen
  • Kontakt
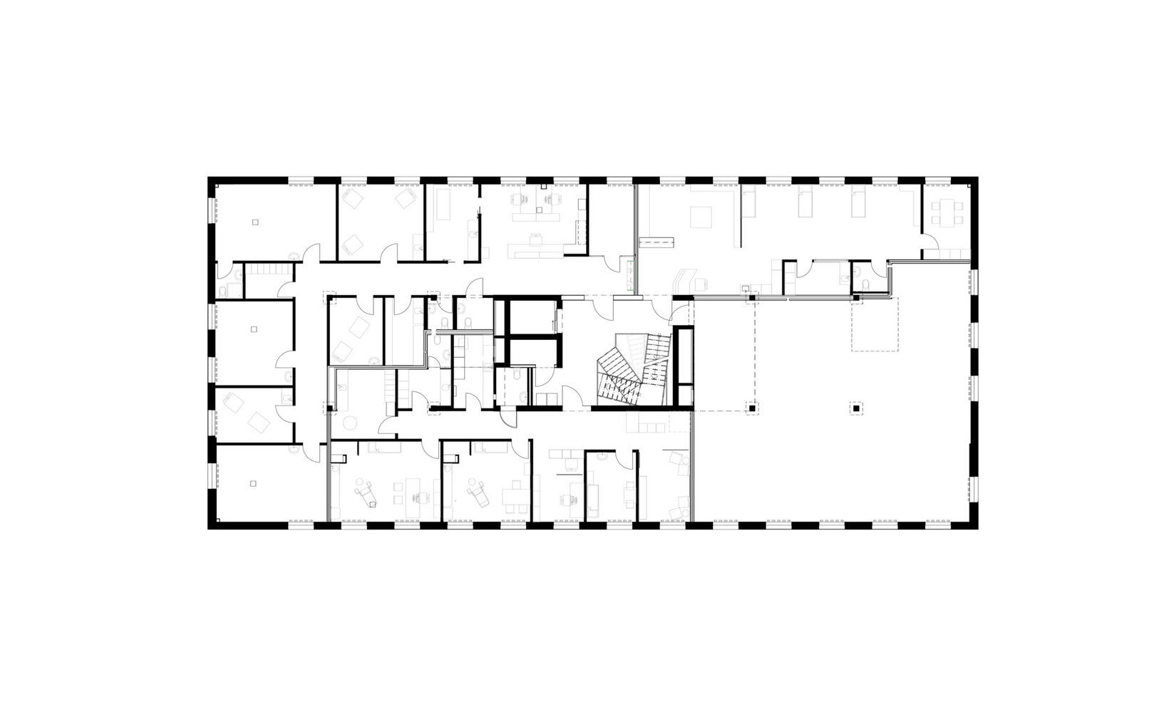
  • Spital Zofingen Neubau Partnerhaus

    Ziel: Der 4-geschossige Neubau ist im nordöstlichen Grundstücksteil entlang der Mühlethalstrasse verortet. Das bisher an dieser Stelle bestehende Hauri-Haus wird rückgebaut. Die Ausrichtung des langgestreckten Volumens erfolgt parallel zum bestehenden Spital. Damit ist einerseits ein städtebaulich, formaler Bezug hergestellt, andererseits ist der Abstand zum Spital gross genug, um eine weitere baulichen Entwicklung des Spitals in nördlicher Richtung zu ermöglichen.

    Problemstellung: Wo auf dem Gelände können wir das Gebäude, im Edelrohbau erstellt, eine flexibel nutzbare Mietflächen für dem Spital nahestehende Nutzungen (Arztpraxen, Apotheke) schaffen.

    fsp: Der Baukörper besteht aus einem Erdgeschoss als Eingangsgeschoss und drei Obergeschossen. Aufgrund der Topografie tritt das Erdgeschoss entlang der Mühlethalstrasse nicht mit seiner gesamten Höhe in Erscheinung und erhält damit auf dieser Seite den Charakter eines Sockels. Der Hauptzugang zum Gebäude befindet sich auf der nordwestlichen Längsseite mit Orientierung zum Spital. Die Nähe zum Akutspital bildet die Basis einer Synergie zwischen dem Partnerhaus und dem Spital.

    • Ort: Zofingen
    • Kategorie: Gesundheitsbauten
    • Baubeginn:
    • Fertigstellung: 2019
    • Status: Realisiert
    • Gesamtleitung fsp: Ivo Lenherr
    • Projektleitung fsp: Urs Siegrist
    • Team fsp: Alexander Christen, Alessia Provenzano, Dieter Hintermann, Sandra Schär
    Spital Zofingen Neubau Partnerhaus
    Zofingen
    Gesundheitsbauten
    None
    2019
    Realisiert
    44012
fsp*. Wir bauen nicht für uns.