• News
  • Projekte
    • Galerie
    • Liste
    • Büro- / Gewerbebauten
    • Gesundheitsbauten
    • Industriebauten
    • Schulbauten
    • Spitalbauten
    • Wohnbauten
    • Wettbewerbe
  • Design-Build
  • Firma
  • Team
  • Jobs
  • Whatsnext
  • Publikationen
  • Kontakt
  • Spital Zofingen aaReha

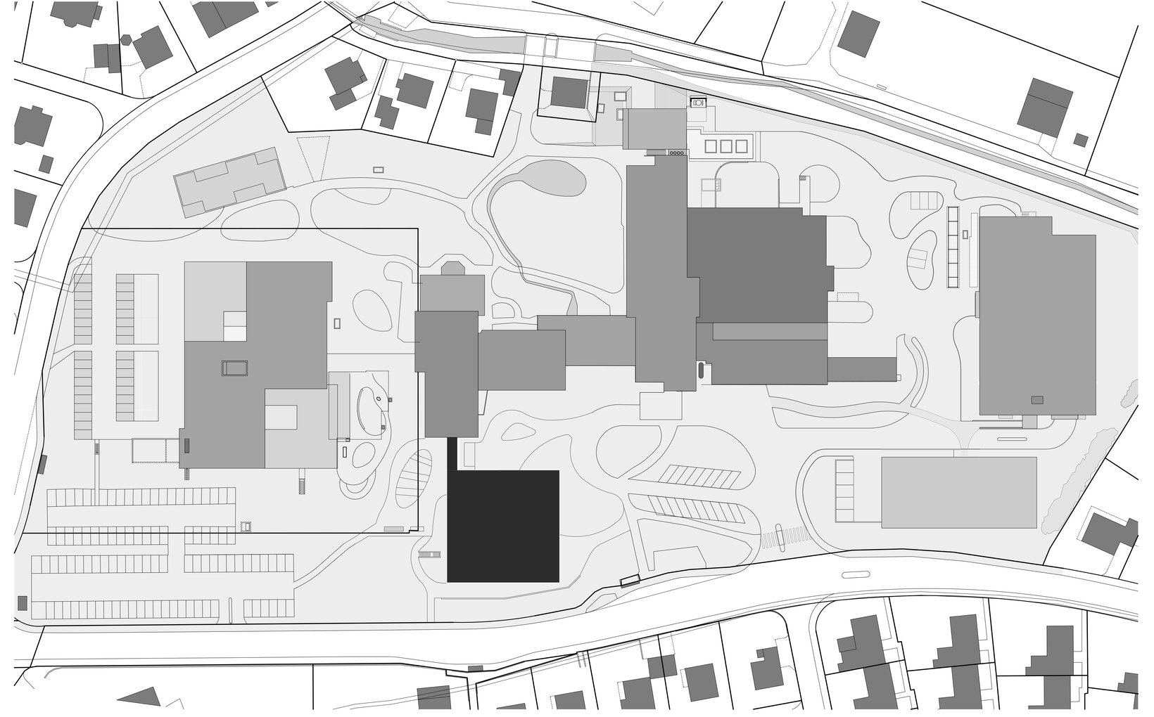
    Ziel: Aus der Partnerschaft von dem spitalzofingen ag und der aarReha Schinznach entsteht an der Mühlethalstrasse ein Neubau. Damit werden in einem ersten Schritt die Raumbedürfnisse der aarReha und auch die des Spitals abgedeckt. Langfristig kann die geplante Lage und Gebäudetiefe des Neubaus sehr gut für die weitere Spitalentwicklung von Nutzen sein.

    Problemstellung: Der Neubau aarReha tritt mit seiner südöstlichen Fassade gegenüber der Mühlethalstrasse mit drei oberirdischen Geschossen und geringerer Fassadenlänge niedriger in Erscheinung als der Altbau. Damit wird die Adresse des Spitals städtebaulich formal gestärkt.

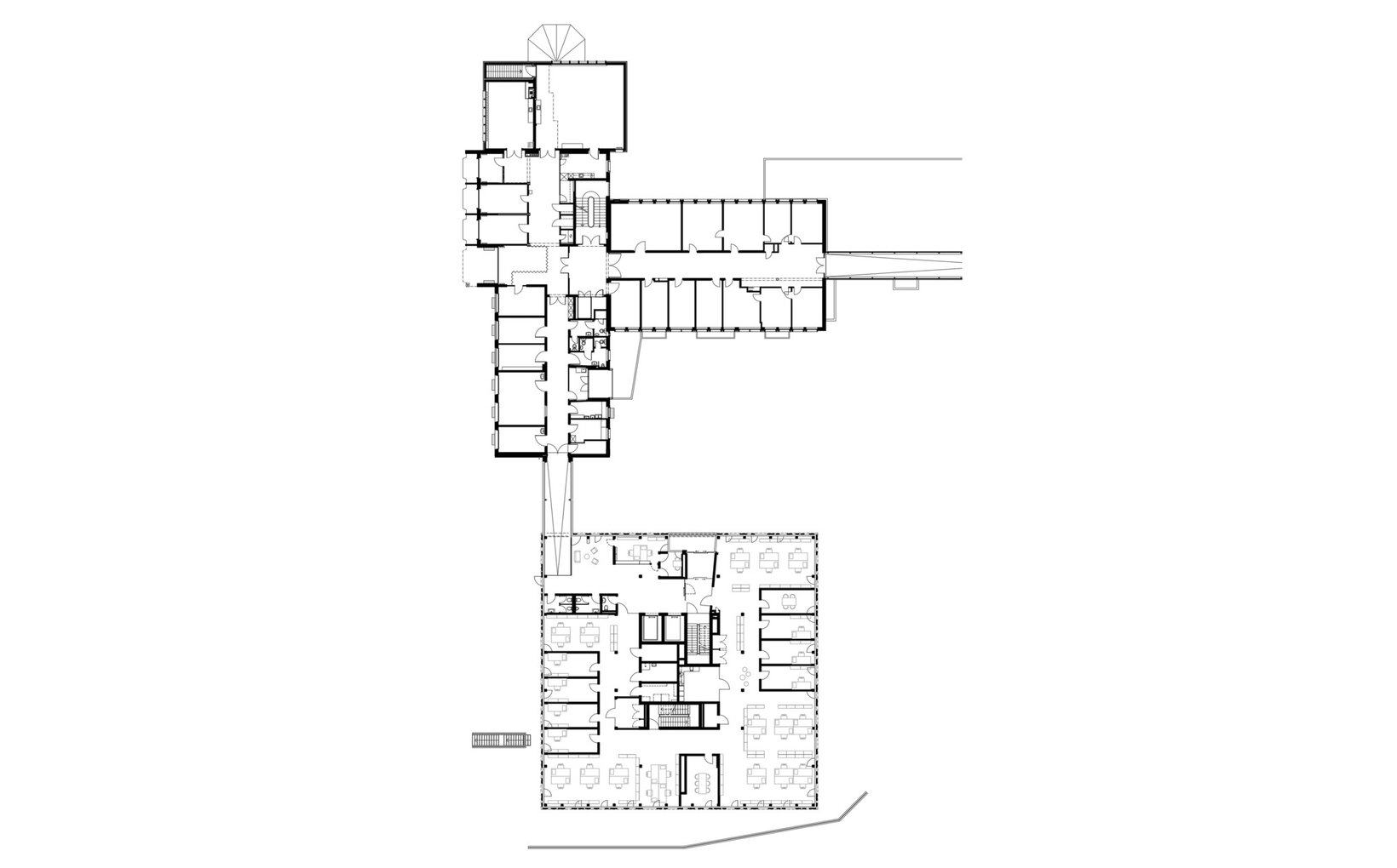
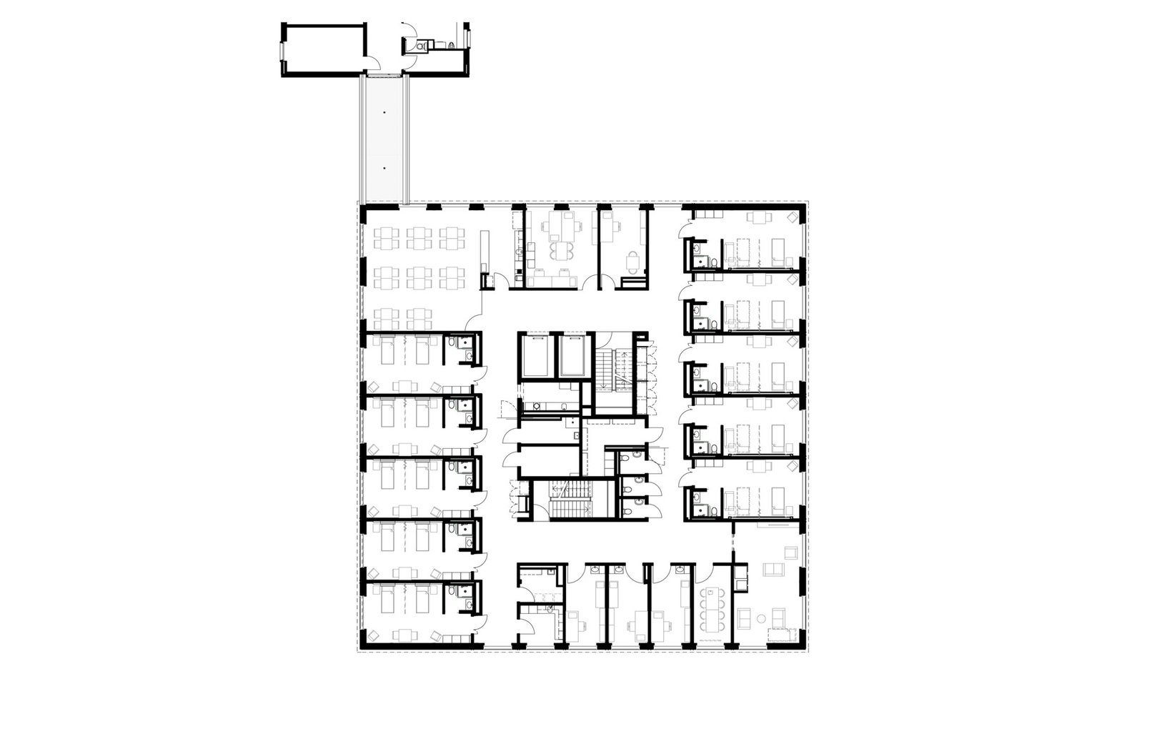
    fsp: Das Neubauvolumen besitzt eine quadratische Grundfigur. Die Anbindung an den Bestand aus dem Jahre 1952 erfolgt im Erd- und Untergeschoss mittels einer eingeschossig in Erscheinung tretenden Passerelle. Der Hautzugang befindet sich auf der Nordwestseite gegenüber dem Haupteingang des Spitals. Die Höhenlage der Geschosse nimmt Bezug zu den Geschosskoten des Akutspitals um bei einem zukünftigen Ersatz des Altbaus geschossgleich an den Bestand anzuschliessen.

    • Ort: Zofingen
    • Kategorie: Spitalbauten
    • Baubeginn:
    • Fertigstellung: 2018
    • Status: Realisiert
    • Gesamtleitung fsp: Ivo Lenherr
    • Projektleitung fsp: Urs Siegrist
    • Team fsp: Alexander Christen, Dieter Hintermann, Camino Escosa Garcia, Georgios Samartzopoulos
    Spital Zofingen aaReha
    Zofingen
    Spitalbauten
    2010, 1.Rang
    2018
    Realisiert
    44014
fsp*. Wir bauen nicht für uns.