• News
  • Projekte
    • Galerie
    • Liste
    • Büro- / Gewerbebauten
    • Gesundheitsbauten
    • Industriebauten
    • Schulbauten
    • Spitalbauten
    • Wohnbauten
    • Wettbewerbe
  • Design-Build
  • Firma
  • Team
  • Jobs
  • Whatsnext
  • Publikationen
  • Kontakt
  • Schulanlage Rüsler

    Ziel: Die Sanierung und Erweiterung der Schulanlage Rüsler soll nicht nur Modernisierung bewirken, sondern auch eine neue Öffnung zum Dorf hin ermöglichen.

    Problemstellung: Synergien zwischen Alt und Neu, Verschmelzung zu einer kompakten Einheit.

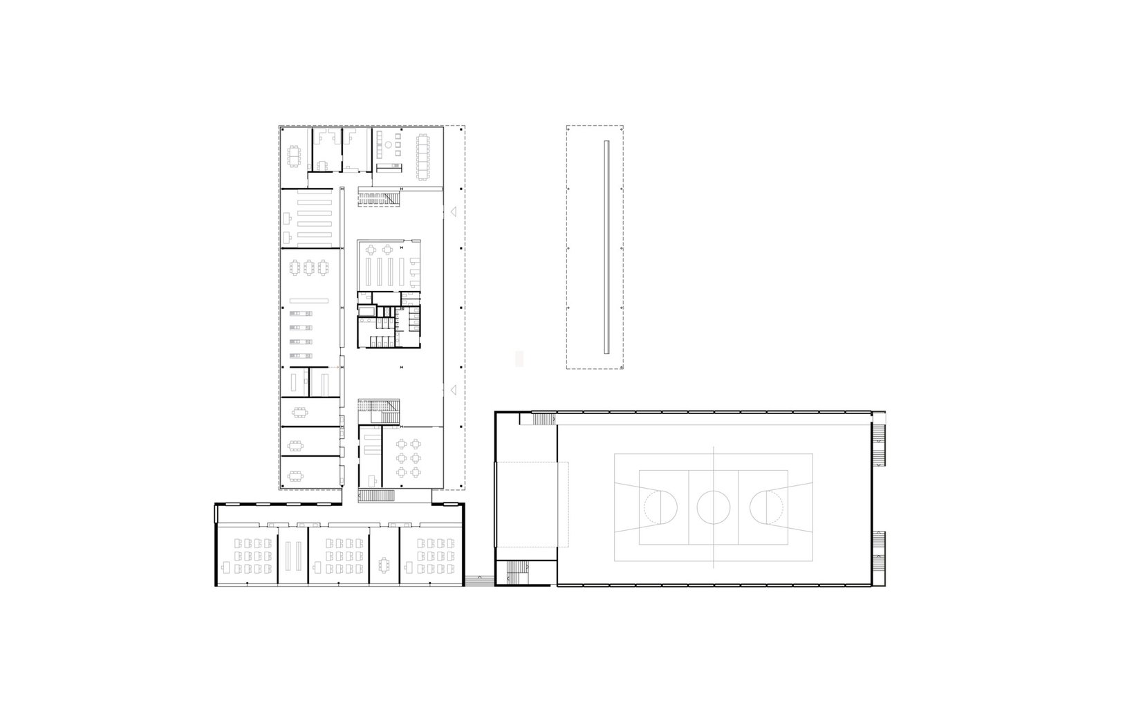
    fsp: Der neue Pausenplatz dient zukünftig auch als Festplatz. Die Umplatzierung des Pausenplatzes und die Neuorientierung der Eingänge ergaben auch neue Nutzflächen innerhalb des Erdgeschosses, welches geschosshoch verglast ist. Im Obergeschoss wurde die bestehende Anordnung der Klassenzimmer beibehalten. Die Eingänge zu den Schulräumen sind als Nischen ausgebildet und führen immer auf einen grösseren Vorplatz. Die neuen Mehrzweckräume wurden zusammengefasst und als Glaskörper im Korridorbereich platziert. Für die Mehrzweckhalle bildete die Anbindung der bestehenden Turnhalle mit ihren Nebenräumen die Ausgangslage. Diese Nutzungsschichten wurden nun auf effiziente Weise linear erweitert, sodass eine vielfältig nutzbare Dreifachhalle mit Bühne und Zuschauergalerie entstand.

    • Ort: Niederrohrdorf
    • Kategorie: Schulbauten
    • Baubeginn: 2003
    • Fertigstellung: 2008
    • Status: Realisiert
    • Bauherrschaft: Gemeinde Niederrohrdorf
    • Gesamtleitung fsp: Heinz Fugazza
    • Projektleitung fsp: Urs Huber
    • Team fsp: Sabine Mauthe
    Schulanlage Rüsler
    Niederrohrdorf
    Schulbauten
    1999 1.Preis
    2008
    Realisiert
    29800
fsp*. Wir bauen nicht für uns.