• News
  • Projekte
    • Galerie
    • Liste
    • Büro- / Gewerbebauten
    • Gesundheitsbauten
    • Industriebauten
    • Schulbauten
    • Spitalbauten
    • Wohnbauten
    • Wettbewerbe
  • Design-Build
  • Firma
  • Team
  • Jobs
  • Whatsnext
  • Publikationen
  • Kontakt
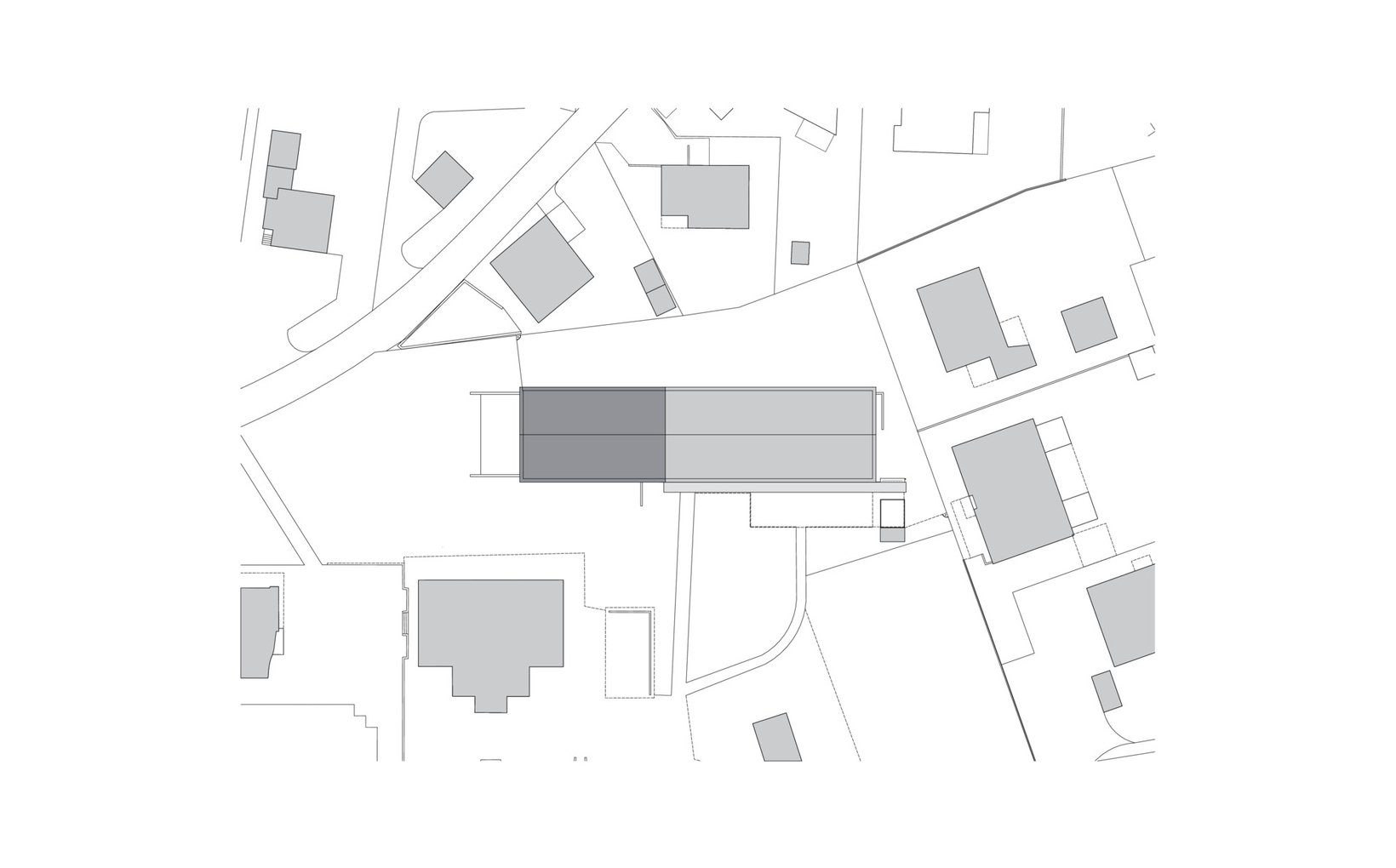
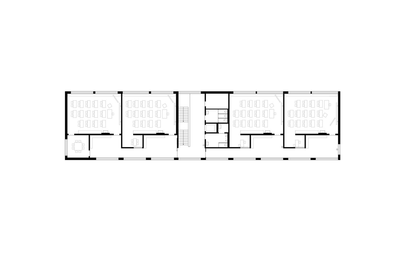
  • Schulanlage Ehrendingen

    Ziel: Trotz bescheidenem Budget eine aus demografischen Gegebenheiten heraus benötigte Schulhauserweiterung erstellen.

    Problemstellung: Unter Berücksichtigung der komplexen Faktoren, sowie nachgewiesenem Raumbedarf, eine bedürfnisgerechte Ergänzung anfügen.

    fsp: Die bestehende Schulanlage der Gemeinde zeigt sich – wie in so vielen Ortschaften – als markanter Solitärbau in historischem Gewand und steht mitten im Dorf. Neben diesem „Leuchtturm“ realisierte fsp in den neunziger Jahren ein kleines, schmuckes Schulhaus. Bereits damals hielt man sich die Option einer Erweiterung offen. 2013 war es so weit: mit kreativen Lösungsansätzen konnte das Volumen optimal erhöht werden. In der Fassade wurde bewusst alt und neu verwoben, und den Kindern gefällt’s. Aus der Not wird eine Tugend, aus Design wird Value!

    • Ort: Ehrendingen
    • Kategorie: Schulbauten
    • Baubeginn: 2001
    • Fertigstellung: 2013
    • Status: Realisiert
    • Gesamtleitung fsp: Christoph Kaech
    • Projektleitung fsp: Urs Huber
    • Team fsp: Martin Geiger, Samuel Grünwald
    Schulanlage Ehrendingen
    Ehrendingen
    Schulbauten
    None
    2013
    Realisiert
    49300
fsp*. Wir bauen nicht für uns.