• News
  • Projekte
    • Galerie
    • Liste
    • Büro- / Gewerbebauten
    • Gesundheitsbauten
    • Industriebauten
    • Schulbauten
    • Spitalbauten
    • Wohnbauten
    • Wettbewerbe
  • Design-Build
  • Firma
  • Team
  • Jobs
  • Whatsnext
  • Publikationen
  • Kontakt
  • Sanierung Reinräume Uni-Spital

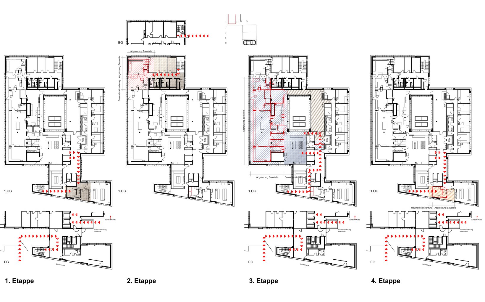
    Ziel: Nach einer Betriebsdauer von 15 Jahren erfordern die Anlagen und Räume der sterilen Herstellung in der Spital-Pharmazie im 1.OG des Unispitals Basel eine Sanierung, die ein Aufrecherhalten des GMP-konformen Betriebs sicherstellen soll. Schwerpunkte der Massnahmen sind der Austausch und Anpassung der Böden und Wände, sowie die Erweiterung der seit Beginn zu klein dimensionierter Lüftungsanlage. 

    Problemstellung: Die Spital-Pharmazie erfüllt im Bereich der personenbezogenen Medikamentenproduktion eine wichtige Aufgabe im USB. Durch die richtige Etappierung und durch einen provisorischen Betrieb der Zytostatika-Produktion muss eine lückenlose Medikamentenlieferung ermöglicht werden. Gefordert ist die Optimierung der Betriebsabläufe in Zusammenarbeit mit den Nutzern. 

    fsp: Die Raumorganisation im Grundriss wurde optimiert und besser an den Produktionsprozess angepasst. Schwerpunkte der baulichen Massnahmen waren der Austausch und die Anpassung der Bodenbeläge und des Wandsystems, sowie die Erweiterung der seit Beginn zu klein dimensionierten Lüftungsanlage. Das Gebäude blieb während des gesamten Umbaus in Betrieb.

    • Ort: Basel
    • Kategorie: Spitalbauten
    • Baubeginn:
    • Fertigstellung: 2016
    • Status: Realisiert
    • Gesamtleitung fsp: Markus Schärer
    • Projektleitung fsp: Urs Siegrist
    • Team fsp: Urthe Aust, Jenny Voser
    Sanierung Reinräume Uni-Spital
    Basel
    Spitalbauten
    None
    2016
    Realisiert
    57600
fsp*. Wir bauen nicht für uns.