• News
  • Projekte
    • Galerie
    • Liste
    • Büro- / Gewerbebauten
    • Gesundheitsbauten
    • Industriebauten
    • Schulbauten
    • Spitalbauten
    • Wohnbauten
    • Wettbewerbe
  • Design-Build
  • Firma
  • Team
  • Jobs
  • Whatsnext
  • Publikationen
  • Kontakt
  • Rondo Pflege

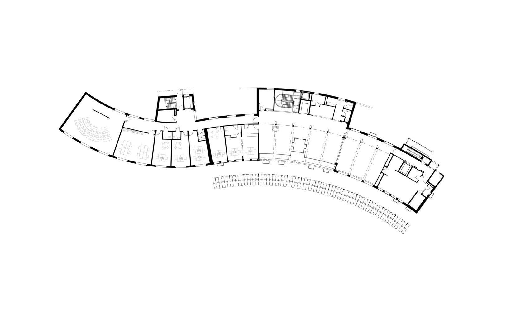
    Ziel: Das von fsp vor rund 25 Jahren erstellte Hauptgebäude wurde saniert und erweitert. Zu den bestehenden 39 Zimmern, die mit 43 Betten belegt und auf drei Stationen verteilt sind, kommen somit 16 neue Zimmer dazu.

    Problemstellung: Das Zusammenfügen vom Bestandsgebäude und dem Erweiterungsbau im laufenden Betrieb stelle mit die grösste Herausforderung dar.

    fsp: Die bisherigen drei Stationen wurden räumlich erweitert und personell leicht aufgestockt. Der Nachfrage entsprechend wird in Zukunft jedes der insgesamt 55 Zimmer zur Einzelbenutzung angeboten. Die Demenzabteilung wurde um einen Dachgarten ergänzt. Im Bestandsgebäude sind die Transportanlagen erneuert, die Räumlichkeiten der Administration erweitert sowie neue Gemeinschaftsräume für die Bewohnenden bereitgestellt worden.

    • Ort: Safenwil
    • Kategorie: Gesundheitsbauten
    • Baubeginn:
    • Fertigstellung: 2018
    • Status: Realisiert
    • Gesamtleitung fsp: Niklaus Gysi
    • Projektleitung fsp: Christa Münch
    • Team fsp: Sheila Ebinger
    Rondo Pflege
    Safenwil
    Gesundheitsbauten
    None
    2018
    Realisiert
    53200
fsp*. Wir bauen nicht für uns.