• News
  • Projekte
    • Galerie
    • Liste
    • Büro- / Gewerbebauten
    • Gesundheitsbauten
    • Industriebauten
    • Schulbauten
    • Spitalbauten
    • Wohnbauten
    • Wettbewerbe
  • Design-Build
  • Firma
  • Team
  • Jobs
  • Whatsnext
  • Publikationen
  • Kontakt
  • PDAG Begegnungszentrum Königsfelden Windisch

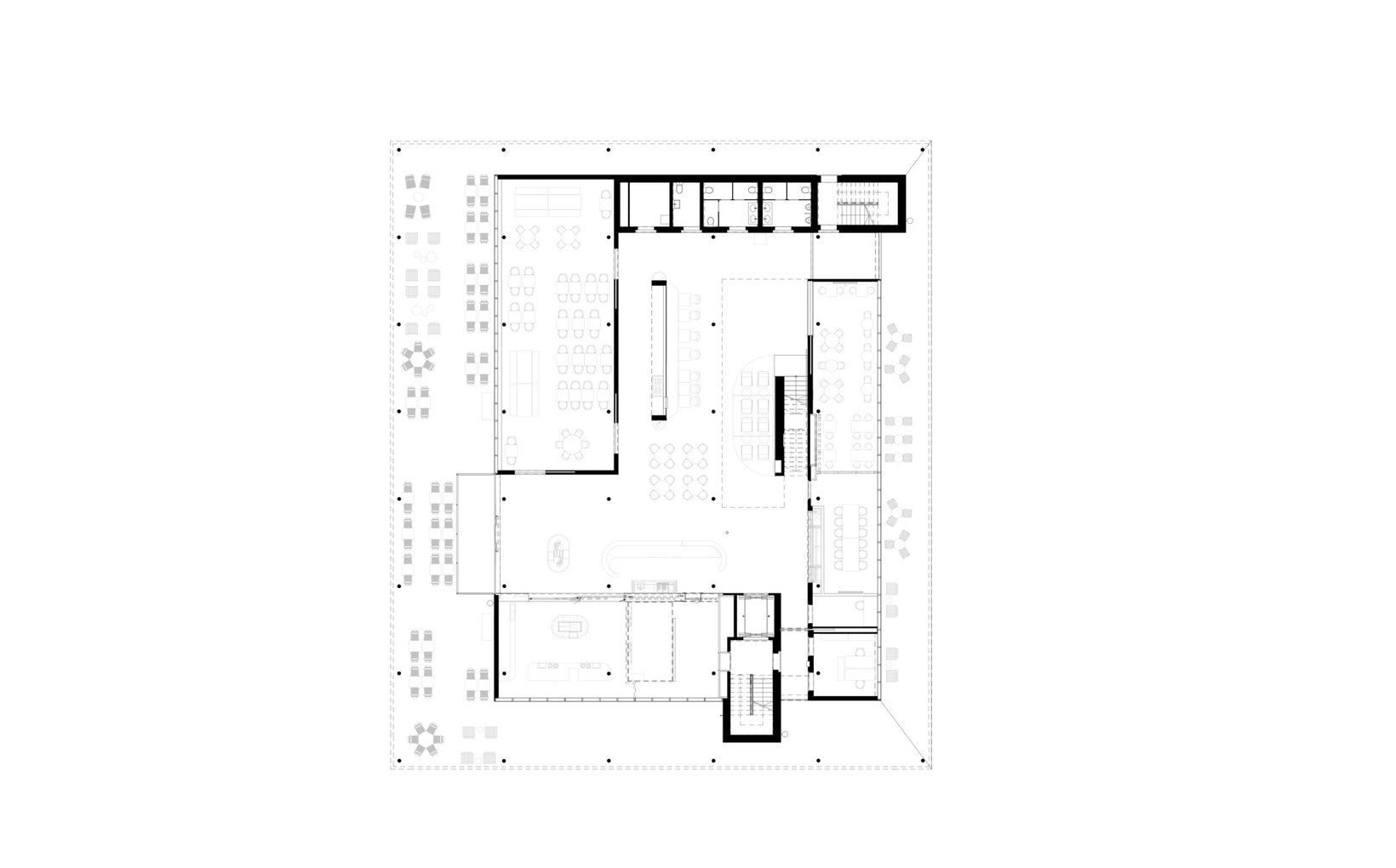
    Ziel: Optimierung der betrieblichen Abläufe im Gastro- und Verpflegungsbereichen, Aufwertung und Neugestaltung der Bistroräume, neue Möblierung.

    Problemstellung: Das Begegnungszentrum muss innerhalb 6 Wochen im Sommer 2022 umgebaut werden. Der Betrieb wird für Sommerzeit geschlossen, die Verpflegung wird mittels Provisoriums gewährleistet. Aus Sicht der Haustechnik und der Medien muss sichergestellt werden, dass die Arbeiten keine Betriebsunterbruche verursachen.

    fsp: Um die betrieblichen Abläufe im Gastro- und Verpflegungsbereichen zu verbessern, wird das Begegnungszentrum BZ im Erdgeschoss umorganisiert. Der Free-Flow Bereich wird optimiert, das Kiosk und Kaffeebar neugestaltet, Verpflegungsbereiche aufgefrischt und neugestaltet. Der Haupteingang wird auf die Ost Seite umgelegt, der westliche Eingang wird um einen Windfang erweitert. Im Obergeschoss werden die bestehenden Sitzungsmöglichkeiten oberflächig aufgefrischt.

    • Ort: Windisch
    • Kategorie: Büro- / Gewerbebauten
    • Baubeginn: 2022
    • Fertigstellung: 2022
    • Status: Realisiert
    • Bauherrschaft: PDAG Psychiatrische Dienste Aargau AG
    • Gesamtleitung fsp: Ivo Lenherr
    • Projektleitung fsp: Jacek Motyl
    • Team fsp: Paul Hess, Maja Schmid, Kim Dao Tran-Nguyen
    PDAG Begegnungszentrum Königsfelden Windisch
    Windisch
    Büro- / Gewerbebauten
    None
    2022
    Realisiert
    86802
fsp*. Wir bauen nicht für uns.