• News
  • Projekte
    • Galerie
    • Liste
    • Büro- / Gewerbebauten
    • Gesundheitsbauten
    • Industriebauten
    • Schulbauten
    • Spitalbauten
    • Wohnbauten
    • Wettbewerbe
  • Design-Build
  • Firma
  • Team
  • Jobs
  • Whatsnext
  • Publikationen
  • Kontakt
  • PDAG Ambulatorium Konnex, Baden

    Ziel: Ausbau von zwei Ambulatorien für Erwachsene- sowie Kinder- und Jugendpsychiatrie im KONNEX-Gebäude in Baden. Aufgrund auslaufender Mietverträge und geänderten Nutzerbedürfnissen werden die momentan auf verschiedene Standorte verteilten Ambulatorien an zentralem Ort in Baden mit optimaler Verkehrsanbindung konzentriert. 

    Problemstellung: Koordination der Nutzerbedürfnisse mit den strategischen Vorgaben des Verwaltungsrats hinsichtlich neuer Arbeitswelten vor dem Hintergrund der speziellen Anforderungen an Privatsphäre und eines vertrauten Umfelds für Patienten. Der Um- und Ausbau erfolgte parallel zur Generalsanierung des Bürokomplexes innerhalb des Zeitraums von 3 Monaten.

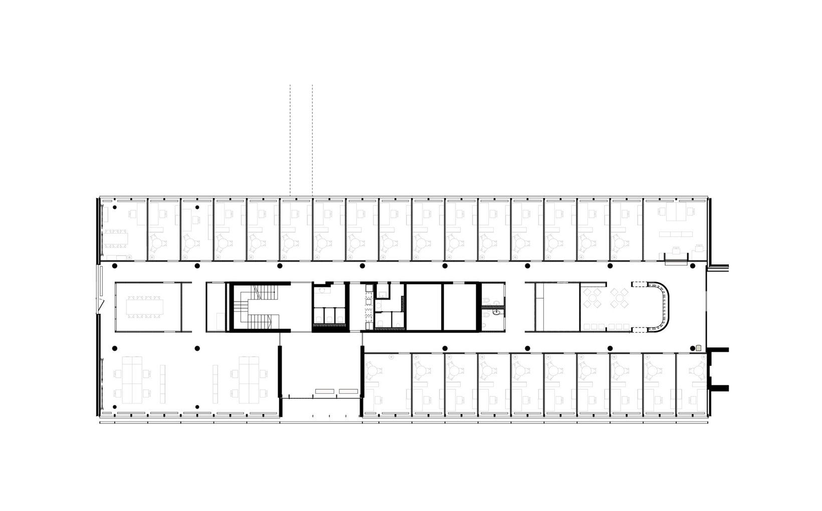
    fsp: In Workshops mit Nutzergruppen wurden Rahmenbedingungen für die Ambulatorien im KONNEX entwickelt, um die Anforderungen des Verwaltungsrats zu erfüllen. Die Ambulatorien liegen auf zwei separaten Etagen im südlichen Teil des Gebäudes. Es entstand ein Raumkonzept mit Einzelbüros und optimaler Flächennutzung. Büros verschiedener Größen reihen sich entlang der Außenwände, während Warteräume und andere Funktionen im Kernbereich liegen. Ein gemeinsamer Aufenthaltsraum und eine verbindende Galerie fördern die Kommunikation. Individuelle Farben und Holzoberflächen bestimmen das Ambiente, während Oberlichter und Eichenholztüren für eine strukturierte und helle Umgebung sorgen.

    • Ort: Baden
    • Kategorie: Gesundheitsbauten
    • Baubeginn: 2023
    • Fertigstellung: 2023
    • Status: Realisiert
    • Bauherrschaft: PDAG AG
    • Gesamtleitung fsp: Alexander Christen
    • Projektleitung fsp: Jürgen Zipf
    • Team fsp: Alexander Christen
    PDAG Ambulatorium Konnex, Baden
    Baden
    Gesundheitsbauten
    None
    2023
    Realisiert
    87800
fsp*. Wir bauen nicht für uns.