• News
  • Projekte
    • Galerie
    • Liste
    • Büro- / Gewerbebauten
    • Gesundheitsbauten
    • Industriebauten
    • Schulbauten
    • Spitalbauten
    • Wohnbauten
    • Wettbewerbe
  • Design-Build
  • Firma
  • Team
  • Jobs
  • Whatsnext
  • Publikationen
  • Kontakt
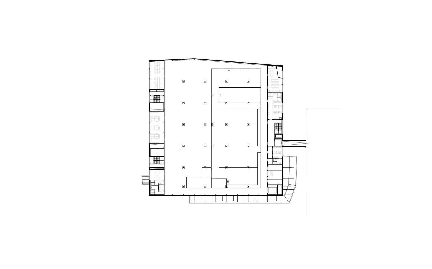
  • Neubau Produktion Sensirion

    Ziel: Die Sensirion AG plant den Neubau eines Produktionsgebäudes in Stäfa, um die steigende Nachfrage auf dem Weltmarkt abzudecken. Dafür wird am Standort Stäfa das bestehende Gebäudeensemble um den Neubau ergänzt. Das neue Gebäude wird auf dem Grundstück der zurückgebauten Parzelle Kat. Nr. 11946 errichtet, welche kürzlich von Sensirion erworben wurde. Der Fokus des Neubaus liegt auf hochklassifizierten Reinräumen der ISO-Klassen 5/6/7 für die Halbleiterproduktion, zudem sind Flächen für Logistik und Anlieferung, Büros sowie Parkplätze und technische Einrichtungen in zwei Untergeschossen vorgesehen.

    Problemstellung: Die Herausforderungen des Projekts umfassen einen engen Kostenrahmen, begrenzte Platzverhältnisse und die Koordination eines grossen Projektteams.

    fsp: Das Bauvorhaben soll die Anforderungen der Bauherrschaft durch eine flexible, jedoch massgeschneiderte Architektur erfüllen, die optimierte wirtschaftliche Abläufe in Betrieb und Produktion ermöglicht. Das Layoutkonzept des Gebäudes ist darauf ausgelegt, eine effiziente Raumorganisation zu bieten, die sich an den strengen Anforderungen der Halbleiterproduktion orientiert und zukünftiges Wachstum abdeckt. Durchdachte Logistikflächen und die intelligente Anordnung von Büroflächen unterstützen die reibungslose Funktion der Produktionsabläufe. Die architektonische Gestaltung sieht eine klar strukturierte Fassade vor, die sich nahtlos in das bestehende Gebäudeensemble einfügt und moderne Akzente setzt. Die Umgebung wird naturnah gestaltet und bildet einen natürlichen Puffer zwischen den Wohnhäusern der Nachbarschaft und dem neuen Produktionsgebäude.

    • Ort: Stäfa
    • Kategorie: Industriebauten
    • Baubeginn: 2025
    • Fertigstellung: 2027
    • Status: In Planung
    • Bauherrschaft: Sensirion Holding AG
    • Gesamtleitung fsp: Ivo Lenherr
    • Projektleitung fsp: Jürgen Zipf
    • Team fsp: Tabea Grauwiler, Christa Münch
    Neubau Produktion Sensirion
    Stäfa
    Industriebauten
    None
    2027
    In Planung
    98100
fsp*. Wir bauen nicht für uns.