• News
  • Projekte
    • Galerie
    • Liste
    • Büro- / Gewerbebauten
    • Gesundheitsbauten
    • Industriebauten
    • Schulbauten
    • Spitalbauten
    • Wohnbauten
    • Wettbewerbe
  • Design-Build
  • Firma
  • Team
  • Jobs
  • Whatsnext
  • Publikationen
  • Kontakt
  • M+S

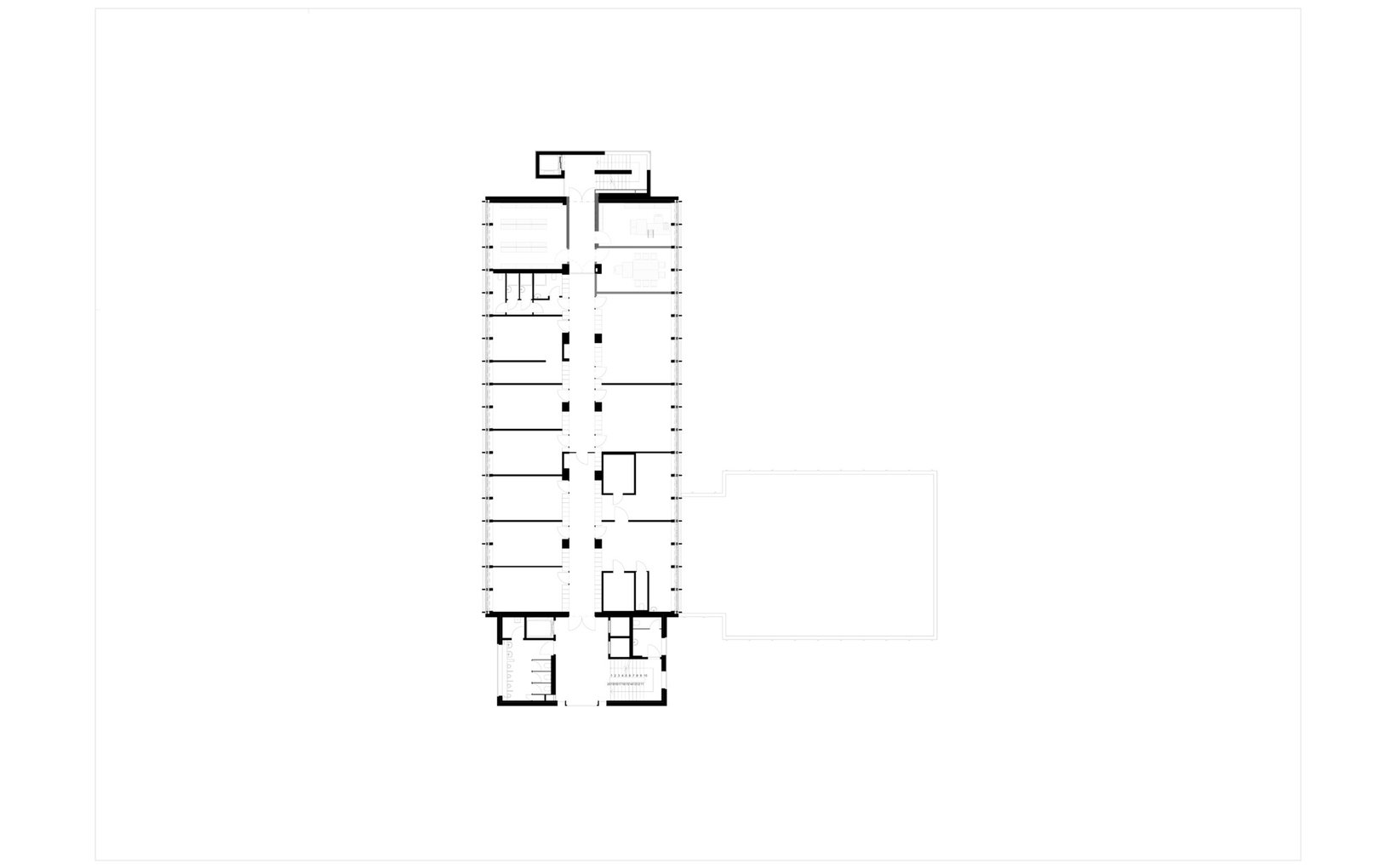
    Ziel: Das Objekt liegt innerhalb des Areals der Firma M+S in Brugg mit der imposanten, ca. 16‘000.m2 grossen Fabrikationshalle. Der schlanke, mit seiner Schmalseite präzis zur Kantonsstrasse ausgerichtete Baukörper diente ursprünglich der Administration von M+S. Heute befinden sich hier ein Ableger der Aargauer Kantonspolizei sowie Büros des Grenzwachkorps.

    Problemstellung: Der bestehende Bau gliedert sich in den muralen Kopfteil mit Treppenkern / Infrastruktur und die anschliessende fein gegliederte Metallfassade der Büroflächen. Diese starke Identität wird beibehalten. Die Erweiterung erfolgt mit einem seitlichen Annexbau mit dem neuen Haupteingang, dem Polizeiposten und weiteren Nutzflächen.

    fsp: Ziel bei der Fassadenerneuerung ist, dass die innere Konstruktionsschicht mit Installationen, Medienkanal erhalten bleibt. Die äussere Struktur mit Verglasungen, Metallprofilen und gedämmten Brüstungsbereichen wird vollständig ersetzt. Der attraktive filigrane Charakter wird mit zeitgemässer Technik neu interpretiert.

    • Ort: Brugg
    • Kategorie: Büro- / Gewerbebauten
    • Baubeginn:
    • Fertigstellung: 2017
    • Status: Abgeschlossen
    • Gesamtleitung fsp: Ivo Lenherr
    • Projektleitung fsp: Bernhard Meyer
    M+S
    Brugg
    Büro- / Gewerbebauten
    None
    2017
    Abgeschlossen
    53800
fsp*. Wir bauen nicht für uns.