• News
  • Projekte
    • Galerie
    • Liste
    • Büro- / Gewerbebauten
    • Gesundheitsbauten
    • Industriebauten
    • Schulbauten
    • Spitalbauten
    • Wohnbauten
    • Wettbewerbe
  • Design-Build
  • Firma
  • Team
  • Jobs
  • Whatsnext
  • Publikationen
  • Kontakt
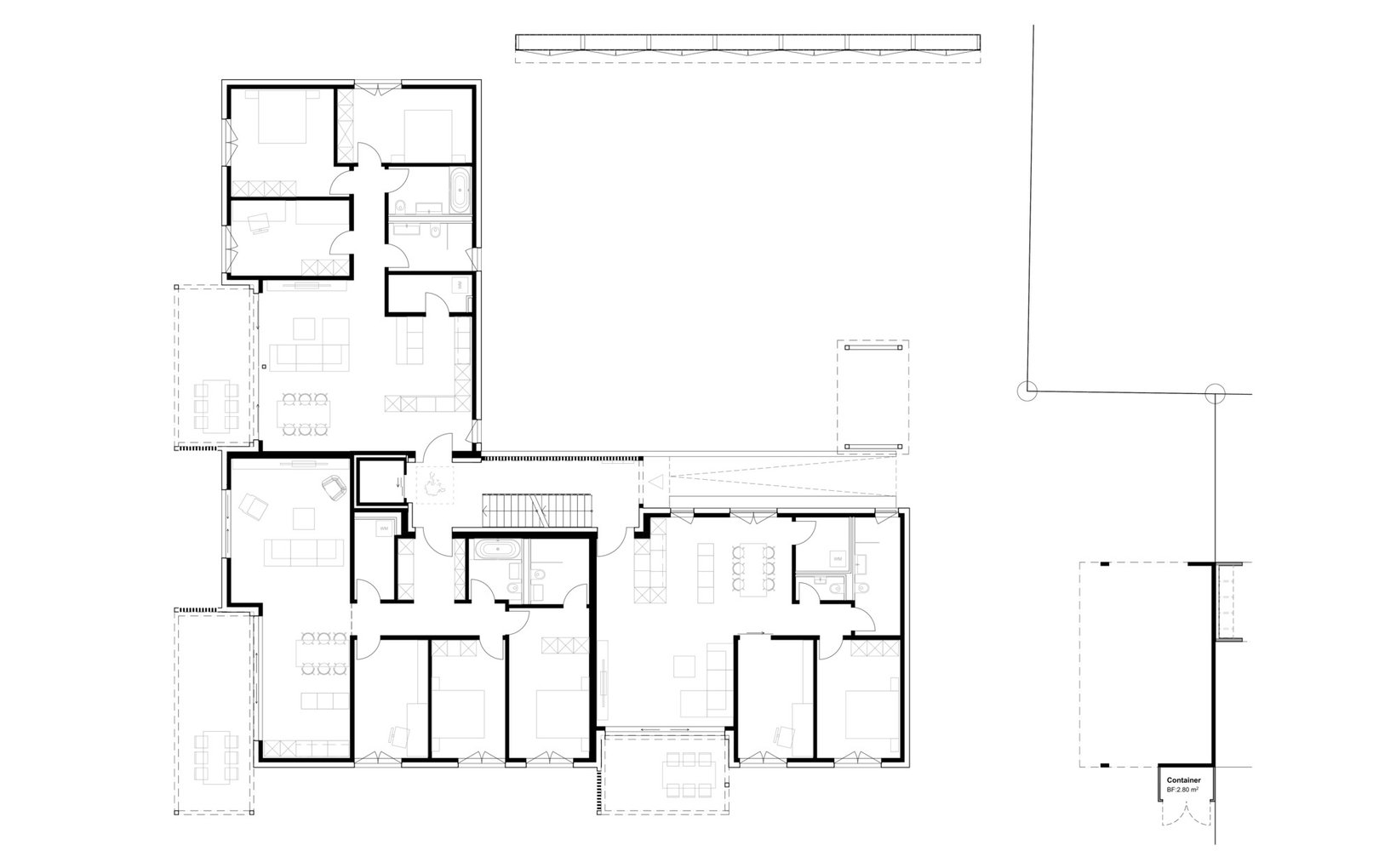
  • MFH Hauswirth Oeschgen

    Ziel: Wohnbauprojekt mit sechs Mietwohnungen für Paare, Kleinfamilien und Senioren. Der Ausbaustandard ist entsprechend der Zielgruppe im Spagat zwischen höher Wertigkeit, Komfort und eher tiefen Kosten. Ehrlichkeit und Charme sind in Farbe und Material gefragt. Die Gestaltung des Aussenbereichs mit Hofbaum und angegrenzten Aussenschränken aus Holz, schafft damit ein Flair des gemütlichen modernen Bauerhauses.

    Problemstellung: Das Grundstück liegt nicht direkt an der Strasse und benötigt eine sichere Erschliessung, die das bestehende Haus von Bauherrn auch nur minimale beeinflussen darf. Obwohl im Erdgeschoss viele Autoabstellplätze geplant wurden, muss die Qualität der Aussengestaltung für Wohnbauten sichergestellt werden. Das erhörte Erdgeschoss sorgt dafür, den Hochwasserschaden zu verhindern.

    fsp: Einwurf und Entwicklung eine optimale Lösung für das Wohnbauprojekt inkl. Erschliessungskonzept sowie nötige Abklärungen mit den Behörden. Eine Plausibilitätsrechnung anhand der Mietzinseinnahme und Bruttorendite wurde für die Kreditbewährung durchgeführt. 

    • Ort: Oeschgen
    • Kategorie: Wohnbauten
    • Baubeginn: 2022
    • Fertigstellung: 2023
    • Status: In Planung
    • Bauherrschaft: Familie Hauswirth
    • Gesamtleitung fsp: Ivo Lenherr
    • Projektleitung fsp: James N. Sitthiyot
    • Team fsp: Maggie Planchat
    MFH Hauswirth Oeschgen
    Oeschgen
    Wohnbauten
    None
    2023
    In Planung
    85300
fsp*. Wir bauen nicht für uns.