• News
  • Projekte
    • Galerie
    • Liste
    • Büro- / Gewerbebauten
    • Gesundheitsbauten
    • Industriebauten
    • Schulbauten
    • Spitalbauten
    • Wohnbauten
    • Wettbewerbe
  • Design-Build
  • Firma
  • Team
  • Jobs
  • Whatsnext
  • Publikationen
  • Kontakt
  • MFH Aspistrasse

    Ziel: Wir realisieren eine Wohnüberbauung im Eigentum mit ca. 10 Wohneinheiten.

    Problemstellung: Die Schaffung eines Ortes mit klarer unverwechselbarer Identität in einer dörflich heterogenen Situation beschäftigt uns. Mit dem Optimieren der Wohnqualität trotz hoher Ausnutzung und Hanglage suchen wir zukunftsweisende Strategien für das 21. Jahrhundert.

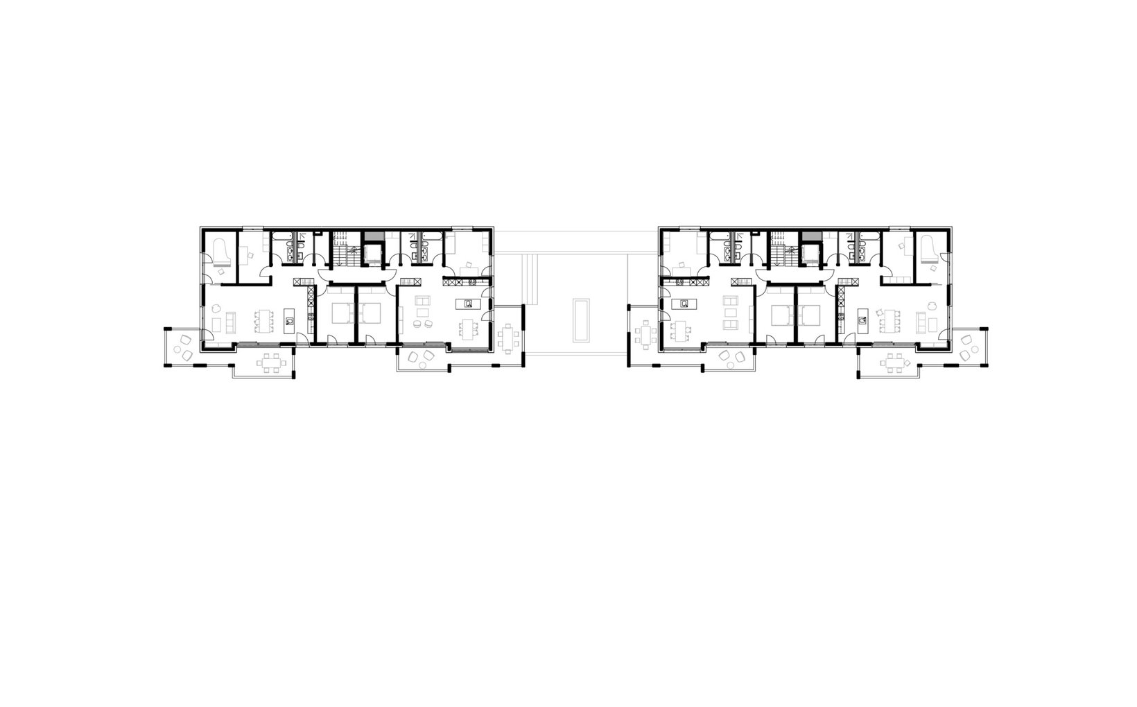
    fsp: Zwei Baukörper mit identischer Volumetrie bilden eine Einheit und fügen sich wie selbstverständlich in den heterogenen städtebaulichen Kontext ein. Die Gebäude sind entlang der Parzellengrenzen angeordnet und fügen sich durch die Höhenstaffelung der Umgebung wie selbstverständlich in den Hang hinein. Es entstehen dadurch grosszügige und vielfältige Aussenräume die durch eine sanften Zonierung von privaten, halbprivaten bis hin zu öffentliche Bereichen auszeichnet. Die Loggien sind zweiseitig orientierte feste Körper, die sich als Volumen zur Richtung Süden richten.Die Bauvolumen sind mit klar gegliederten und dennoch mit abwechslungsreichen Grundrissen bestückt.

    • Ort: Dottikon
    • Kategorie: Wohnbauten
    • Baubeginn: 2017
    • Fertigstellung: 2019
    • Status: Realisiert
    • Gesamtleitung fsp: Ivo Lenherr
    • Projektleitung fsp: Urthe Aust
    MFH Aspistrasse
    Dottikon
    Wohnbauten
    None
    2019
    Realisiert
    67600
fsp*. Wir bauen nicht für uns.