• News
  • Projekte
    • Galerie
    • Liste
    • Büro- / Gewerbebauten
    • Gesundheitsbauten
    • Industriebauten
    • Schulbauten
    • Spitalbauten
    • Wohnbauten
    • Wettbewerbe
  • Design-Build
  • Firma
  • Team
  • Jobs
  • Whatsnext
  • Publikationen
  • Kontakt
  • LIFA AG Erweiterung Produktion / Lager Densbüren

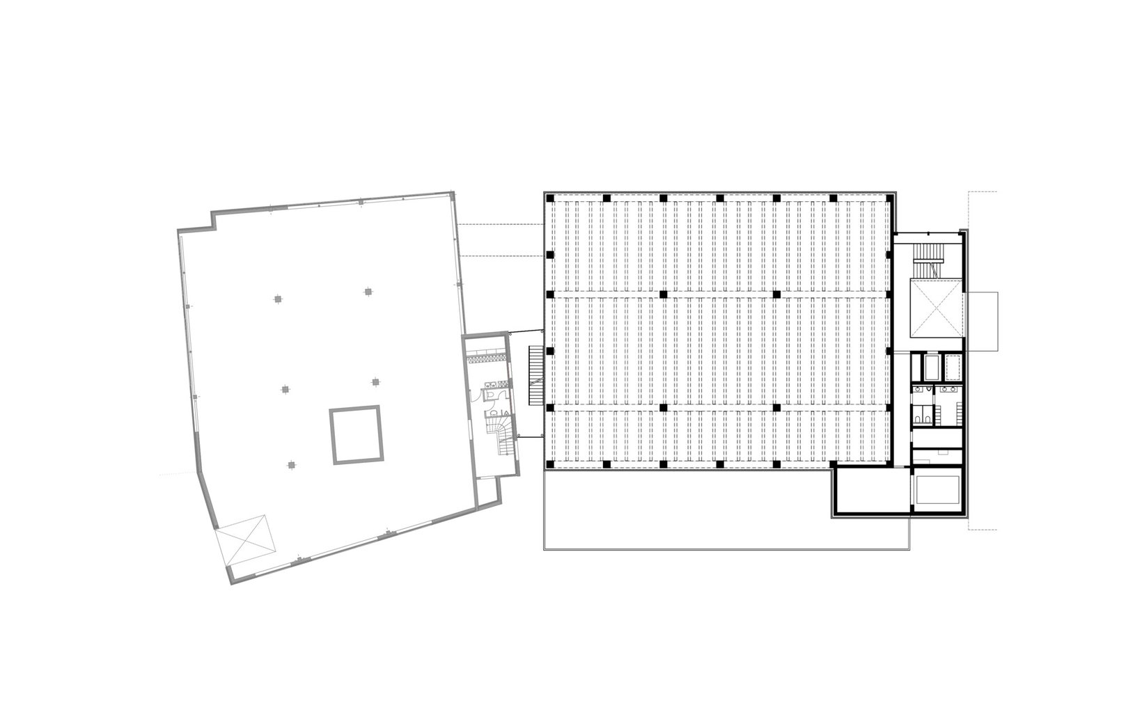
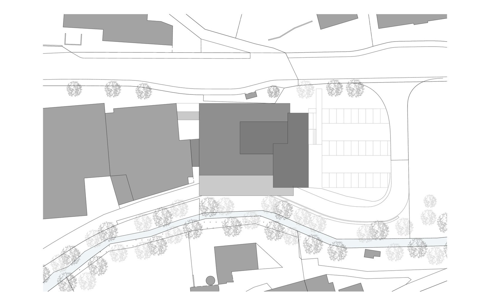
    Ziel: Durch einen Neubau soll mehr Raum für die Lagerung von Rohstoffen und die folgende Produktion von Motorbauteilen geschaffen sowie das bereits bestehende Areal Kaisermatt in Densbüren ausgebaut werden. Das Projekt gliedert sich in eine Reihe bestehender Gebäude ein und dient zugleich der Erschliessung eines zukünftig angrenzenden Kopfbaus als Adresse und Schlussstein des Campus.

    Problemstellung: Die Verbindung zum angrenzenden, bestehenden Gebäude sowie eine zukünftige Verbindung zum Kopfbau des Areales in Zusammenhang mit der Topografie und den Anforderungen an verschiedene Raum-höhen stellen die Herausforderung dar und prägen die Architektur.

    fsp: In Zusammenarbeit mit Goldbeck-Rhomberg als TU wurde das Gebäude in einer modularen Beton-Stahlbauweise entwickelt. Die Fassade ist in einer einfachen Bauweise an die angrenzenden Gebäude angeglichen, um sich in die Reihe der bestehenden Bauten einzuordnen. Der Lager- und Produktionsbereich grenzt an das bestehende Gebäude Kaisermatt 3 an und weist über die gesamte Gebäudehöhe drei Geschosse auf. Im angrenzenden südlichen Gebäudeteil entsteht ein Zwischentrakt der die Erschliessung, Nebenräume und zuoberst eine Mensa mit Terrasse beherbergt. Dieser Gebäudeteil gliedert sich in acht Geschosse resp. Zwischengeschosse und ermöglicht so den Zugang zu den unterschiedlichen Nutzungen, sowie die Erschliessung und Infrastruktur für einen zukünftigen angrenzenden Kopfbau im Süden.  

    • Ort: Densbüren
    • Kategorie: Büro- / Gewerbebauten
    • Baubeginn:
    • Fertigstellung: 2022
    • Status: In Planung
    • Bauherrschaft: Lifa AG / TU Goldbeck-Rhomberg
    • Gesamtleitung fsp: Christoph Kaech
    • Team fsp: Aline Jean
    LIFA AG Erweiterung Produktion / Lager Densbüren
    Densbüren
    Büro- / Gewerbebauten
    None
    2022
    In Planung
    88700
fsp*. Wir bauen nicht für uns.