• News
  • Projekte
    • Galerie
    • Liste
    • Büro- / Gewerbebauten
    • Gesundheitsbauten
    • Industriebauten
    • Schulbauten
    • Spitalbauten
    • Wohnbauten
    • Wettbewerbe
  • Design-Build
  • Firma
  • Team
  • Jobs
  • Whatsnext
  • Publikationen
  • Kontakt
  • Laborgebäude IMP

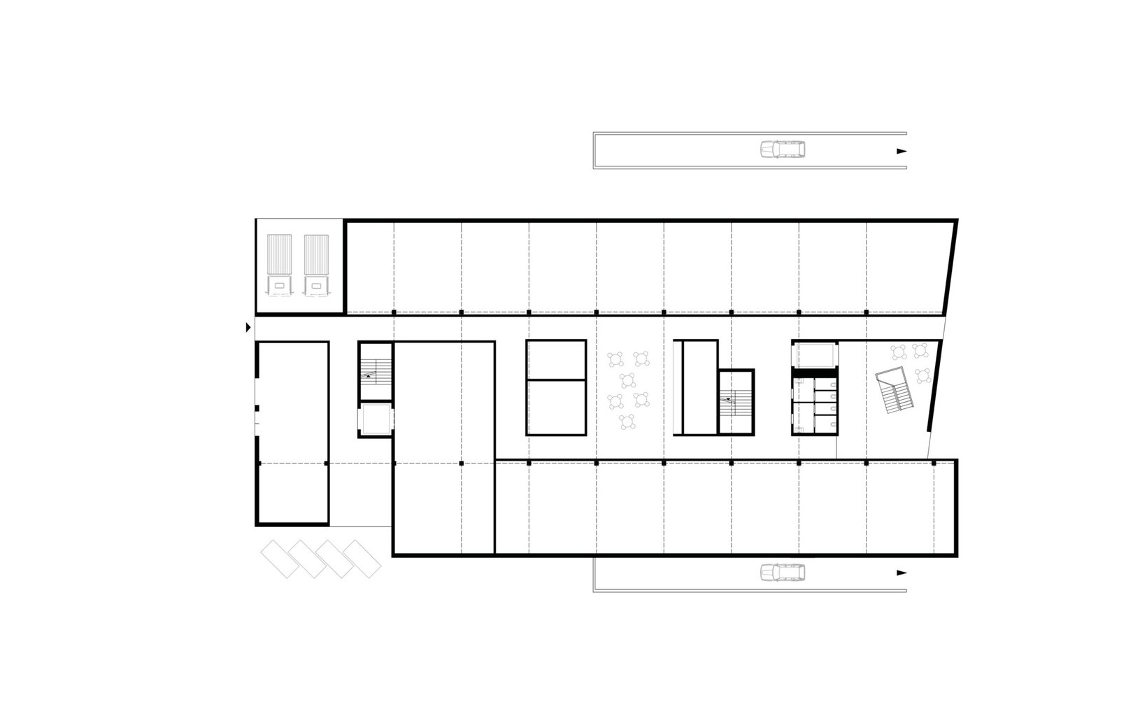
    Ziel: Umsetzung des komplexen Organigramms der Firmentätigkeit in eine klare und überschaubare Grundstruktur, welche das Wesen des Betriebes für die Mitarbeitenden ebenso wie für die BesucherInnen sichtbar und erlebbar macht.

    Problemstellung: Konsequentes Einbahnsystem aller Fahrtbewegungen als Basis für den betrieblichen Ablauf mit zwei Rampen zum Untergeschoss auf der Ost- und Westseite.

    fsp: Im Erdgeschoss sind die wichtigsten betrieblichen Bereiche zusammengefasst. Die einfache, rechteckige Grundfigur ist in drei lineare Nutzungszonen mit zwei Erschliessungskorridoren gegliedert: Die mittlere Zone umfasst die Eingangsbereiche Kunden und Personal, diverse Diensträume, die vertikalen Erschliessungskerne und zwei Lichthöfe. Die zwei peripheren Funktionsbereiche sind durch ihre Lage optimal belichtet. Die zwei nördlich angeordneten Obergeschosse umfassen ca. ein Drittel der Grundfläche und funktionieren analog. Hier repräsentiert sich der Bau mit seinem Schwergewicht zur Kantonsstrasse am Ortseingang.

    • Ort: Oberbuchsiten
    • Kategorie: Industriebauten
    • Baubeginn: 2012
    • Fertigstellung: 2016
    • Status: Abgeschlossen
    • Bauherrschaft: Institut für Materialprüfung
    • Gesamtleitung fsp: Christoph Kaech
    • Projektleitung fsp: Bernhard Meyer
    • Team fsp: Urthe Aust, Alessia Provenzano
    Laborgebäude IMP
    Oberbuchsiten
    Industriebauten
    2012 1.Preis
    2016
    Abgeschlossen
    53000
fsp*. Wir bauen nicht für uns.