• News
  • Projekte
    • Galerie
    • Liste
    • Büro- / Gewerbebauten
    • Gesundheitsbauten
    • Industriebauten
    • Schulbauten
    • Spitalbauten
    • Wohnbauten
    • Wettbewerbe
  • Design-Build
  • Firma
  • Team
  • Jobs
  • Whatsnext
  • Publikationen
  • Kontakt
  • Kindergarten Boppelsen

    Ziel: Integration Doppelkindergarten sowie in bestehende Schulanlage, unter besonderer Berücksichtigung der kinderspezifischen Bedürfnisse.

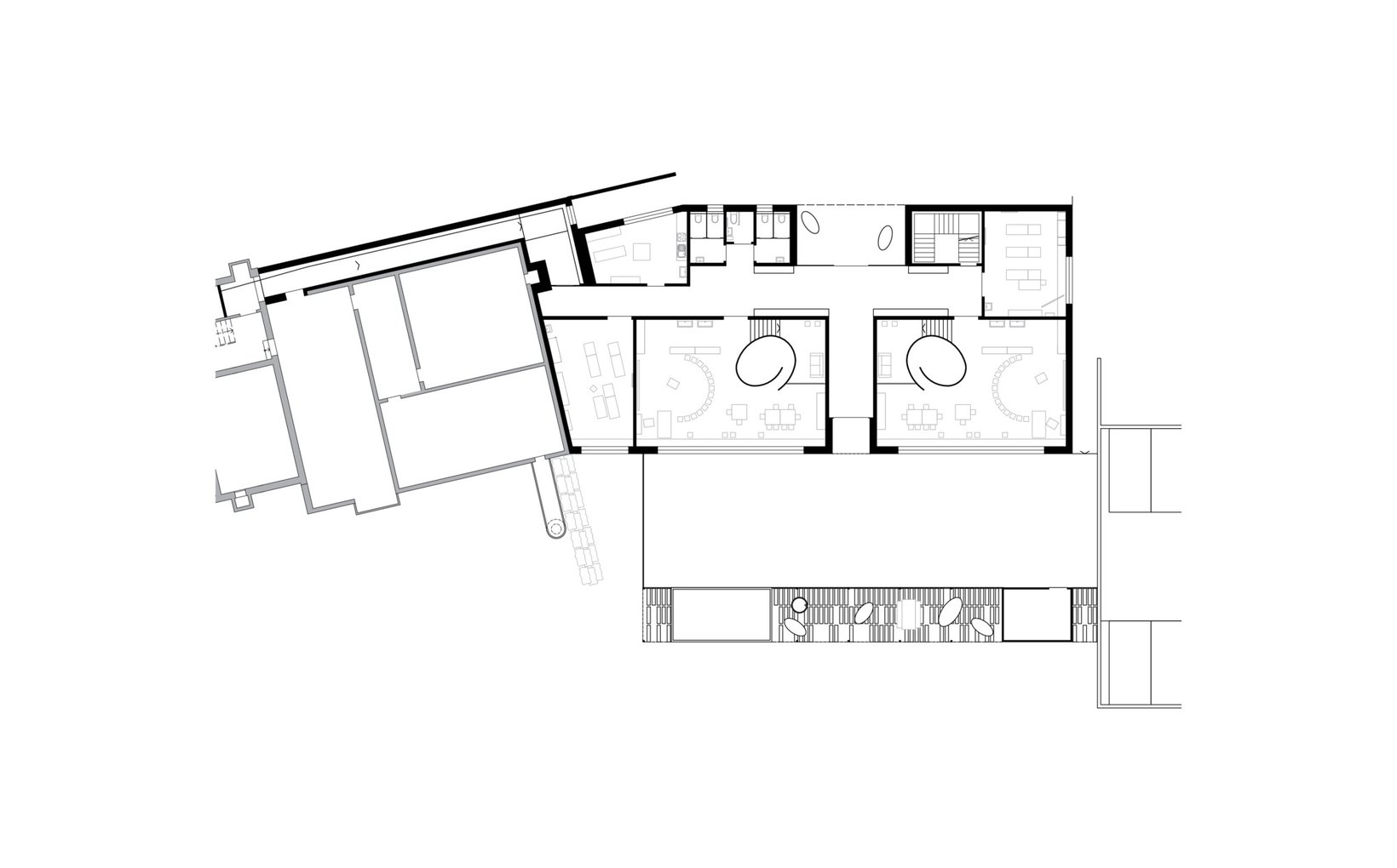
    Problemstellung: Die bestehende Schulanlage befindet sich am südlichen Dorfrand von Boppelsen, eingebettet in eine leichte Hanglage, mit attraktiver Aussicht in die hügelige durchgrünte Landschaft. Der neue Doppelkindergarten soll als eingeschossiges, dem kindlichen Massstab entsprechendes Element dem bestehenden Kontext eingefügt werden.

    fsp: Die leicht abgedrehte Lage betont die Eigenständigkeit, reagiert auf die Topographie bzw. die Erschliessungsstrasse und vermeidet lange Baufluchten. Eine klar formulierte Fuge unterstützt die Ablesbarkeit der zwei Gruppen, hier befindet sich der Hauptzugang sowie der Ausgang zum Spielbereich im Freien. Im Innern der zwei Kindergärten wird der Blick auf die ovale Raumskulptur gelenkt, diese bietet eine Rückzugsmöglichkeit begleitet den Aufstieg zur flankierenden Galerie mit Sichtbezug über den gesamten Raum.

    • Ort: Boppelsen
    • Kategorie: Schulbauten
    • Baubeginn: 2009
    • Fertigstellung: 2009
    • Status: Realisiert
    • Bauherrschaft: Primarschulgemeinde
    • Gesamtleitung fsp: William Steinmann
    • Projektleitung fsp: Urs Huber
    • Team fsp: Sonia Segura Casal, Marcantonio Bruno, Fischer Gustav, Raphael Leutenegger
    Kindergarten Boppelsen
    Boppelsen
    Schulbauten
    2008 1.Preis
    2009
    Realisiert
    42900
fsp*. Wir bauen nicht für uns.