• News
  • Projekte
    • Galerie
    • Liste
    • Büro- / Gewerbebauten
    • Gesundheitsbauten
    • Industriebauten
    • Schulbauten
    • Spitalbauten
    • Wohnbauten
    • Wettbewerbe
  • Design-Build
  • Firma
  • Team
  • Jobs
  • Whatsnext
  • Publikationen
  • Kontakt
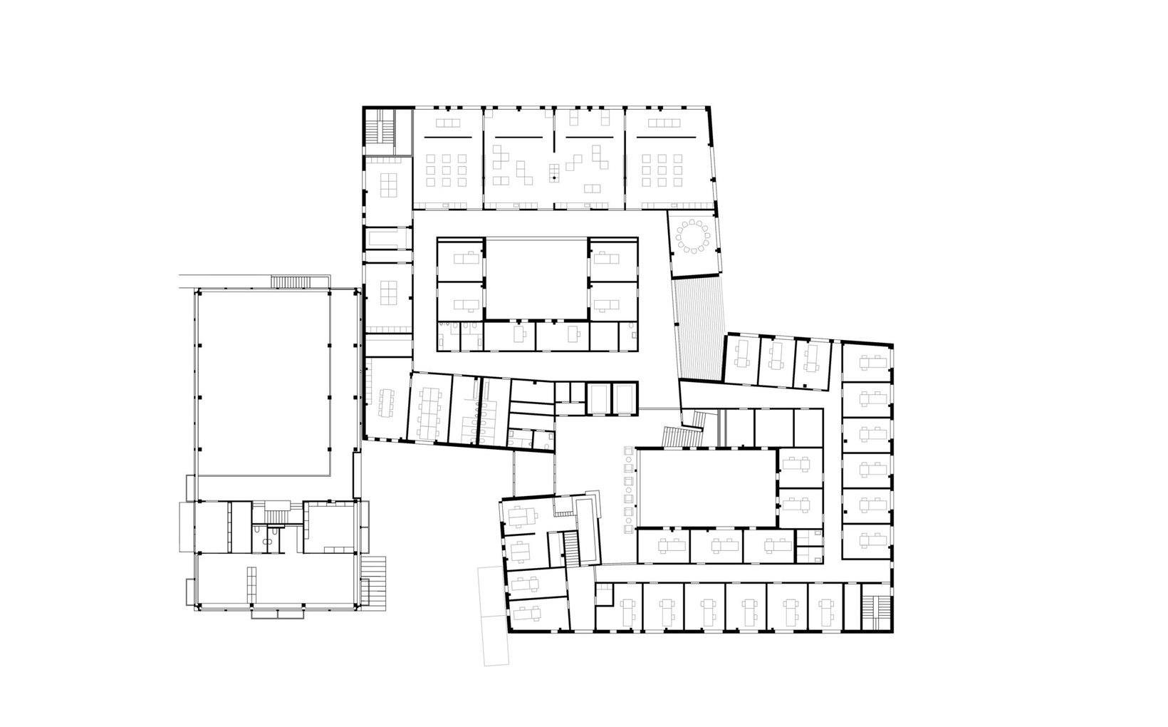
  • Kinder u. Jugendpsychiatrisches Zentrum Königsfelden

    Der Neubau des Kinder- und Jugendpsychiatrischen Zentrums befindet sich an der östlichen Arealgrenze im Übergang zum angrenzenden Wald und der Geländekante zum Aare-Raum. Die baulichen Strukturen in diesem Bereich der Psychiatrischen Kliniken werden durch die in der Grundform einheitlichen, quadratischen Pavillons in lockereraber dennoch gerichteter Setzung geprägt. Diese treten mehrheitlich drei bis viergeschossig in Erscheinung. Ebenso befindet sich auf dem Areal eine bestehende Turnhalle, welche in die Nutzung zu integrieren ist. Die Höhenentwicklung des Neubaus entspricht der Geschossigkeit der angrenzenden Bauten. Das nördliche Volumen wird mit vier Geschossen ausgebildet, wohingegen das südliche Volumen sich an den drei Geschossen des angrenzenden Pavillons orientiert. Durch die Gliederung des Volumens entstehen differenzierte Aussenräume, welche klar verschiedenen Nutzungen zugewiesen werden können. Im Schnittpunkt der verwobenen Volumen werden die Fassaden gegenüber dem Wald und der Turnhalle leicht aus dem orthogonalen Raster gedreht. Damit wird einerseits auf den angrenzenden Waldraum und die auf dem Grundstück befindliche Baumgruppe reagiert und andererseits eine Öffnung des Gebäudes in Richtung der bestehenden Pavillons erzeugt.

    • Ort: Windisch
    • Kategorie: Gesundheitsbauten
    • Baubeginn:
    • Fertigstellung: 2016
    • Status: Realisiert
    • Gesamtleitung fsp: Ivo Lenherr
    • Projektleitung fsp: Urs Huber
    • Team fsp: Jacek Motyl, Alexander Christen, Monia Trojetto
    Kinder u. Jugendpsychiatrisches Zentrum Königsfelden
    Windisch
    Gesundheitsbauten
    2014, 1.Preis
    2016
    Realisiert
    57000
fsp*. Wir bauen nicht für uns.