• News
  • Projekte
    • Galerie
    • Liste
    • Büro- / Gewerbebauten
    • Gesundheitsbauten
    • Industriebauten
    • Schulbauten
    • Spitalbauten
    • Wohnbauten
    • Wettbewerbe
  • Design-Build
  • Firma
  • Team
  • Jobs
  • Whatsnext
  • Publikationen
  • Kontakt
  • Häuselmann Embrach

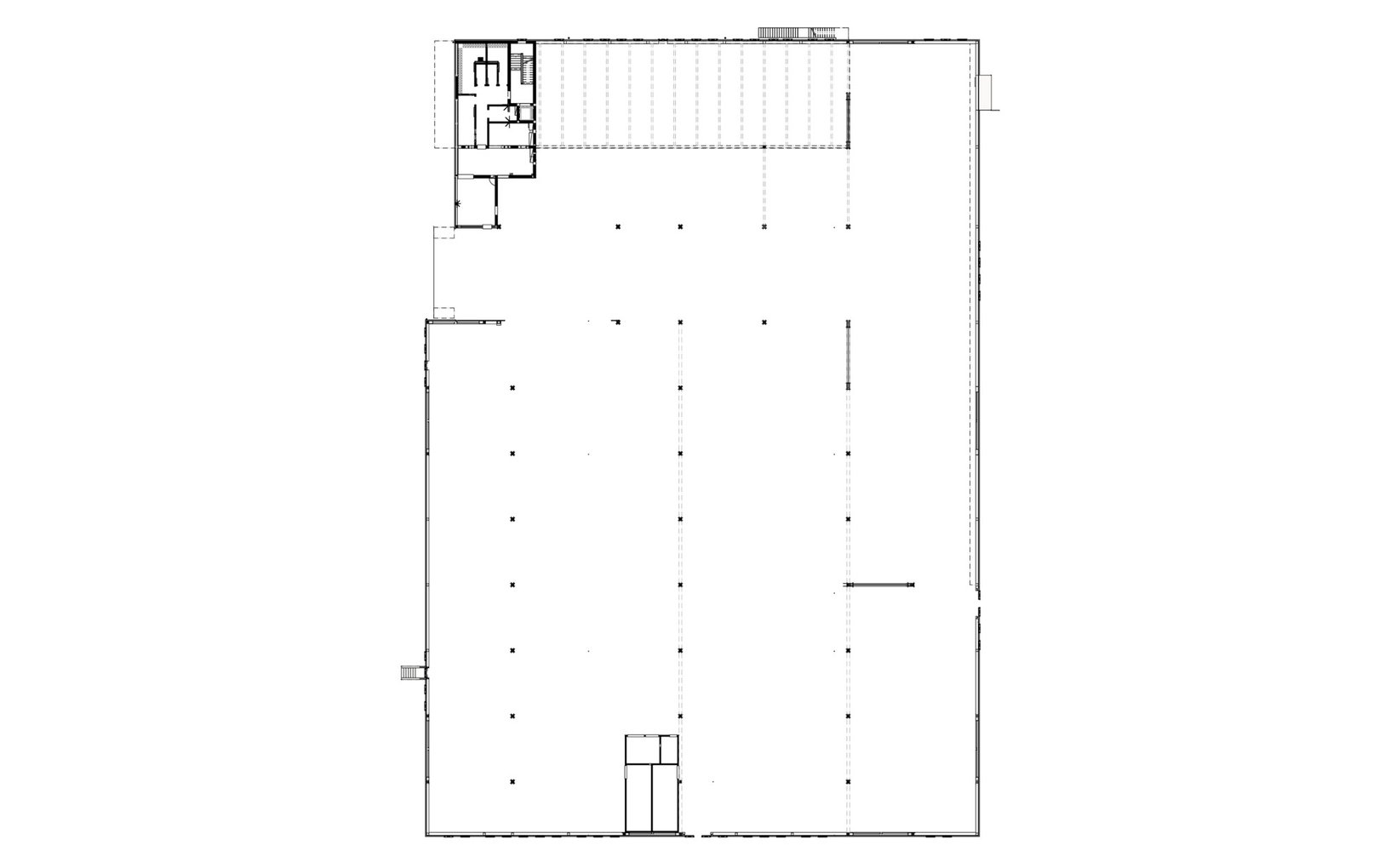
    Ziel: Die Firma Häuselmann Metall GmbH ist einer der grössten Metallhändler der Schweiz. Der bestehende Standort ist über die Jahre gewachsen und hat sich strukturell dezentral entwickelt. Ziel mit dem Neubau an einem neuen Standort sind operative Aspekte. Hochregallager, Fertigungshalle Metallprofile und Bürofläche sind nun in einem Gebäude zusammengefasst. Die logistischen Abläufe sind somit durch die kürzeren Wege optimiert.

    Problemstellung: Fertigungsstrassen, Lastenkräne und das Hochregallager geben die innere Struktur der Halle vor. Das Gebäude musste so konstruiert werden, dass die Fertigungshalle und insbesondere das Hochregallager möglichst frei von Stützen sind. Spannweiten von bis zu 20 m konnten durch Fachwerkträgern realisiert werden. Das Freispielen der lichten Raumhöhe von der Haustechnik bedurfte hohen koordinativen Aufwand, der bereits in den frühen Phasen an einem digitalem Gebäudemodell interdisziplinär erfolgte.

    fsp: Fertigungshalle, das Hochregallager, die Büroräume und die Anlieferung mit dem Schiebfalttor bilden die sichtbaren Elemente. Materialisierung und Farbgebung setzen sich mit dem Material Metall auseinander. Die Oblichtbänder, erzeugen ein angenehmes Tageslicht in der grossflächigen Halle. fsp Architekten AG war es ein grosses Anliegen den Industriecharakter im Gewerbegebiet zu erhalten, das Neubauvolumen als kubisches Element in der bestehenden Umgebung einzufügen.

    • Ort: Embrach
    • Kategorie: Industriebauten
    • Baubeginn: 2020
    • Fertigstellung: 2021
    • Status: Realisiert
    • Bauherrschaft: Häuselmann Metall GmbH
    • Gesamtleitung fsp: Ivo Lenherr
    • Projektleitung fsp: Urthe Aust
    Häuselmann Embrach
    Embrach
    Industriebauten
    None
    2021
    Realisiert
    78100
fsp*. Wir bauen nicht für uns.