• News
  • Projekte
    • Galerie
    • Liste
    • Büro- / Gewerbebauten
    • Gesundheitsbauten
    • Industriebauten
    • Schulbauten
    • Spitalbauten
    • Wohnbauten
    • Wettbewerbe
  • Design-Build
  • Firma
  • Team
  • Jobs
  • Whatsnext
  • Publikationen
  • Kontakt
  • Hauptsitz Tudor Pro Cycling Team

    Ziel: Mit dem Neubau der Hauptzentrale in Sursee schafft Tudor Pro Cycling einen identitätsstiftenden Ort, der sportliche Höchstleistung, nachhaltige Infrastruktur und Fanerlebnis vereint. Das Gebäude soll optimale Trainings- und Arbeitsbedingungen bieten und zugleich die regionale Verankerung des international ausgerichteten Teams stärken.

    Problemstellung: Das rasante Wachstum des Teams sowie die steigenden Anforderungen des internationalen Profiradsports erfordern eine skalierbare, hochfunktionale Infrastruktur. Gleichzeitig galt es, sportliche Performance, Nachhaltigkeitsstandards und eine öffentlich zugängliche Nutzung architektonisch und betrieblich in Einklang zu bringen.

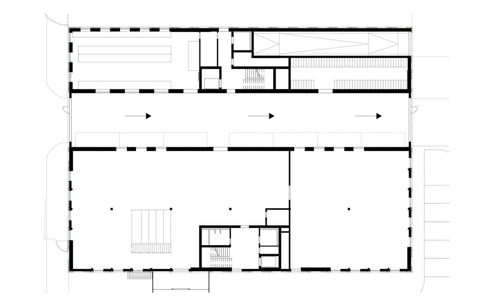
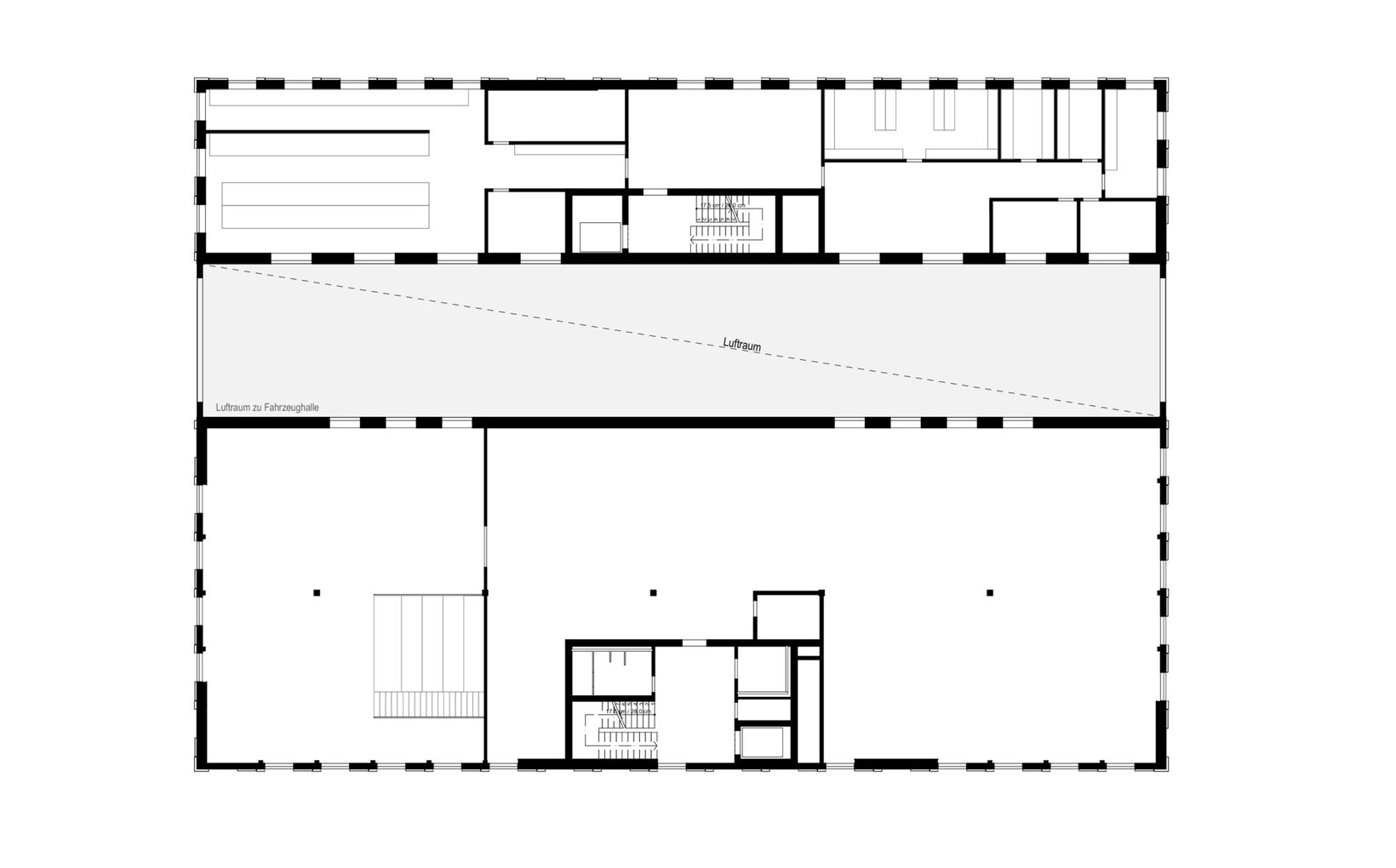
    fsp: fsp Architekten AG verantwortet die Planung der neuen fünfgeschossigen Hauptzentrale mit rund 10’500 m² Geschossfläche an der Zeughausstrasse in Sursee. Das Projekt vereint spezialisierte Funktionsbereiche für Training, Werkstätten, Logistik und Administration mit öffentlich zugänglichen Zonen für Fans und Besucher. Im Fokus standen eine klare funktionale Organisation, effiziente Betriebsabläufe sowie flexible Strukturen zur Unterstützung des weiteren Teamwachstums. Besonderes Augenmerk wurde auf eine nachhaltige Bauweise gelegt, die den hohen Anforderungen der DGNB-Gold-Zertifizierung entspricht. Entstanden ist ein identitätsstarker Standort, der Leistungssport, Innovation und Öffentlichkeit architektonisch verbindet.

    • Ort: Sursee
    • Kategorie: Büro- / Gewerbebauten
    • Baubeginn: 2025
    • Fertigstellung: 2027
    • Status: Im Bau
    • Bauherrschaft: Sette Immo AG
    • Gesamtleitung fsp: Christoph Kaech
    • Projektleitung fsp: Selim Manjusak
    Hauptsitz Tudor Pro Cycling Team
    Sursee
    Büro- / Gewerbebauten
    None
    2027
    Im Bau
    101000
fsp*. Wir bauen nicht für uns.