• News
  • Projekte
    • Galerie
    • Liste
    • Büro- / Gewerbebauten
    • Gesundheitsbauten
    • Industriebauten
    • Schulbauten
    • Spitalbauten
    • Wohnbauten
    • Wettbewerbe
  • Design-Build
  • Firma
  • Team
  • Jobs
  • Whatsnext
  • Publikationen
  • Kontakt
  • Google Bürowelten DL4

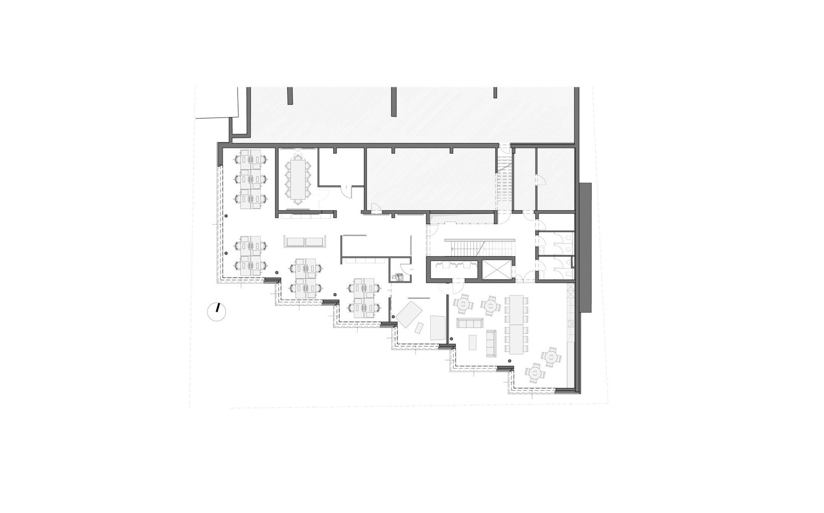
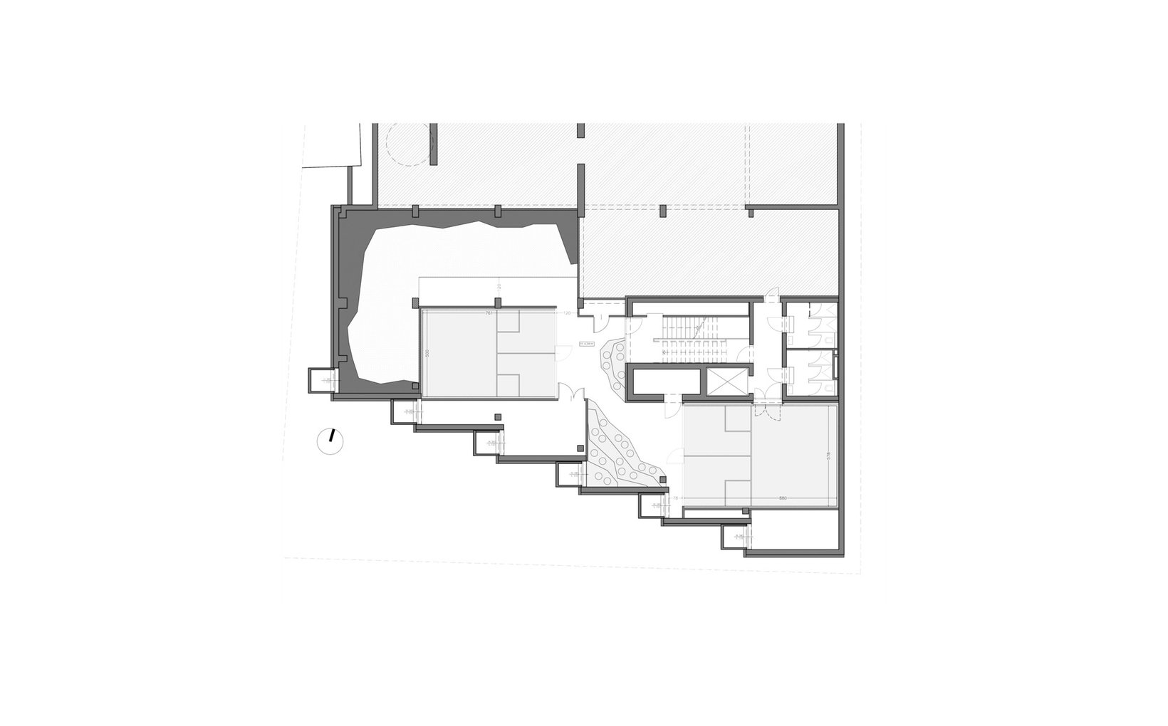
    Ziel: Spannende Bürowelten sollen Mitarbeiter für eine global tätige Firma inspirieren und die Schranken der Arbeitswelt durchbrechen. Problemstellung: Es ist immer anspruchsvoll in einem bestehenden Gebäude eine neue Welt zu schaffen. Viele Details können erst am Bau definitiv entstehen. Die Bauleitung musste oft vor Ort Probleme gemeinsam mit Handwerkern lösen. fsp: Das Projekt "DL4" für Google an der Brandschenkestrasse in Zürich wurde anfangs November 2016 nach 6-monatiger Bauzeit erfolgreich an die Bauherrschaft übergeben. Der spannende Innenausbau auf dem ehemaligen Hürlimann-Areal im Zürcher Kreis 2 wurde von 967 Architetti Associati aus Mailand inszeniert und von unserer internen Bauleitungsabteilung umgesetzt.
    • Ort: Zürich
    • Kategorie: Büro- / Gewerbebauten
    • Baubeginn:
    • Fertigstellung: 2016
    • Status: Realisiert
    • Partner fsp: Bruno De Rivo 967 Architetti Associati Milano
    • Gesamtleitung fsp: Christoph Kaech
    • Projektleitung fsp: Jennifer Schenk, Monia Trojetto
    Google Bürowelten DL4
    Zürich
    Büro- / Gewerbebauten
    None
    2016
    Realisiert
    58000
fsp*. Wir bauen nicht für uns.