• News
  • Projekte
    • Galerie
    • Liste
    • Büro- / Gewerbebauten
    • Gesundheitsbauten
    • Industriebauten
    • Schulbauten
    • Spitalbauten
    • Wohnbauten
    • Wettbewerbe
  • Design-Build
  • Firma
  • Team
  • Jobs
  • Whatsnext
  • Publikationen
  • Kontakt
  • Gesundheitsversorgung Zürcher Oberland

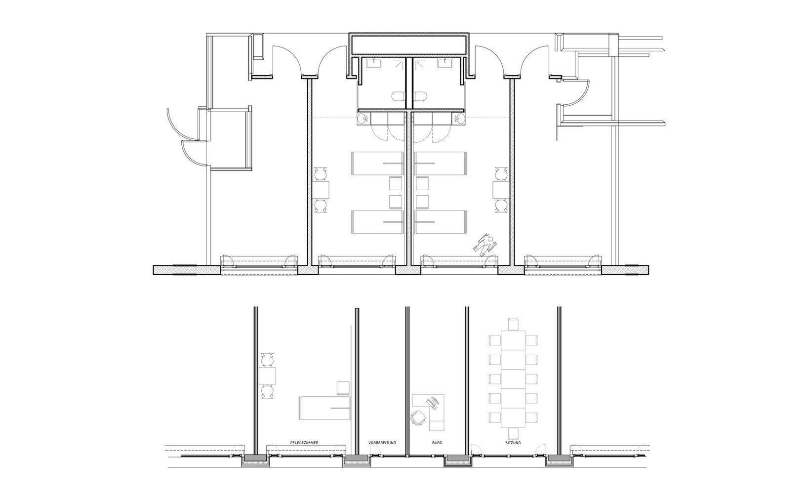
    Ziel: Abgeleitet aus der Aufgabenstellung und den bestehenden Rahmenbedingungen wurden folgende Kernthemen definiert: Die geplanten Massnahmen der Spitalerweiterung und Umgestaltung sollen in ihrer Ausformulierung den Bezug zum Ort stärken und die in den letzten Jahren durch Provisorien und Anbauten verunklärte städtebauliche Disposition bereinigen.

    Problemstellung: In der inneren Struktur sollen die verschiedenen Bauetappen räumlich und gestalterisch als eigenständige Gebäudeteile erlebbar werden ohne jedoch die erforderlichen funktionellen Synergien zu negieren.

    fsp: Die Wirtschaftlichkeit muss nicht nur die Aspekte der Erstellung, sondern insbesondere auch jene des Betriebs und Unterhalts berücksichtigen. Demensprechend sind die Kosten ganzheitlich zu betrachten. Den Aspekten der ökologischen und ökonomischen Nachhaltigkeit soll insbesondere durch die Wahl der Baumaterialien und einer flexiblen Gebäudestruktur Rechnung getragen werden.

    • Ort: Wetzikon
    • Kategorie: Gesundheitsbauten
    • Baubeginn:
    • Fertigstellung: 2014
    • Status: Abgeschlossen
    • Gesamtleitung fsp: Christoph Kaech
    • Projektleitung fsp: Alexander Christen
    • Team fsp: Christina Tsouma, Urthe Aust
    Gesundheitsversorgung Zürcher Oberland
    Wetzikon
    Gesundheitsbauten
    2014
    2014
    Abgeschlossen
    22600
fsp*. Wir bauen nicht für uns.