• News
  • Projekte
    • Galerie
    • Liste
    • Büro- / Gewerbebauten
    • Gesundheitsbauten
    • Industriebauten
    • Schulbauten
    • Spitalbauten
    • Wohnbauten
    • Wettbewerbe
  • Design-Build
  • Firma
  • Team
  • Jobs
  • Whatsnext
  • Publikationen
  • Kontakt
  • Geschäftshaus Thurgauerstrasse Opfikon

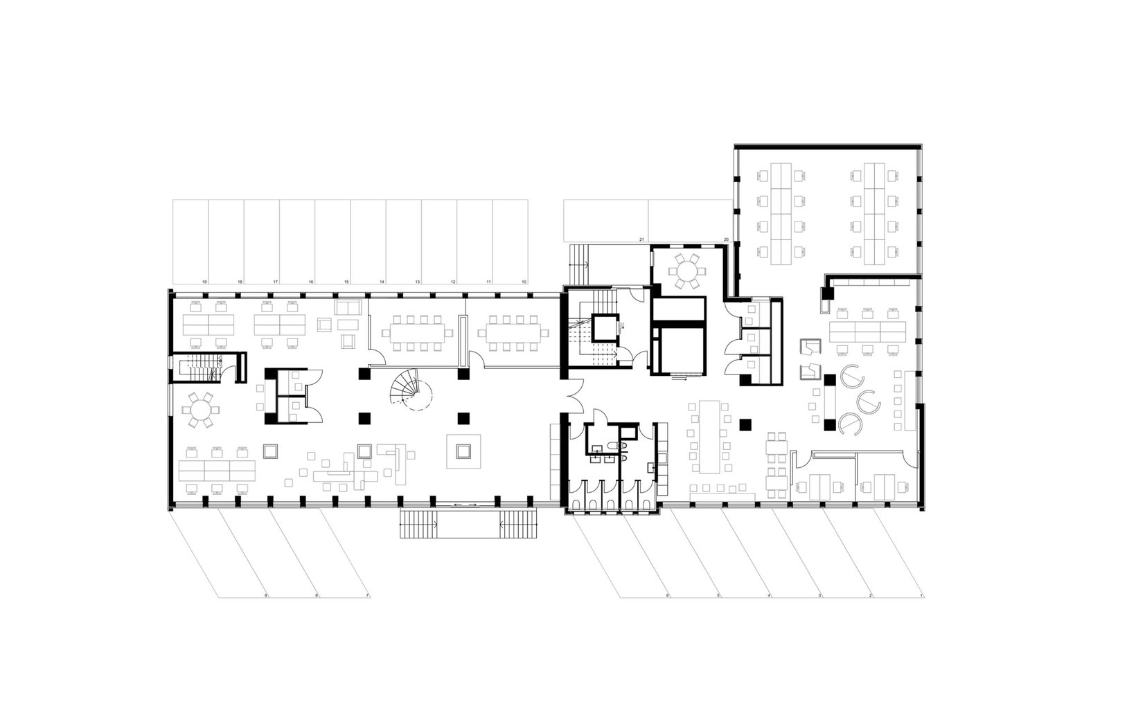
    Ziel: Umnutzung kleinteilige Gewerbefläche zum Hybrid. In bestehender Struktur ansprechende Wohnnutzung zu schaffen in Kombination mit Open Space Büroflächen.

    Problemstellung: Die Liegenschaft Thurgauerstrasse 107 wurde im Jahr 1963 für einen Singel- Tenant erbaut und über Jahre so genutzt. Im Jahr 1997 wurde die Fassade, das Dach teilweise und die Fenster erneuert. Ebenso der Eingangsbereich, Bodenbeläge und WC- Anlagen. In den folgenden Jahren wurde die Liegenschaft an verschiedene Mieter geschossweise vermietet. Im Jahr 2018 wurden die beiden Lifte saniert. Die Liegenschaft wurde laufend gut erhalten, jedoch steht eine grosszyklische Gesamtsanierung inkl. Haustechnik und Steigstränge an. Die Liegenschaft steht ab Mitte 2020 leer und sollte nach der Gesamtsanierung neu am Markt positioniert werden.

    fsp: Erstellung Projekt Short-/ Longstay und Open Space Büroflächen. Ausarbeitung Baubewilligung mit allen für das Gesuch notwendigen Unterlagen. Koordination der Fachplaner.

    • Ort: Opfikon
    • Kategorie: Büro- / Gewerbebauten
    • Baubeginn:
    • Fertigstellung: 2022
    • Status: In Planung
    • Gesamtleitung fsp: Ivo Lenherr
    • Projektleitung fsp: Urthe Aust
    • Team fsp: Anja Zeller-Sacher, Niklaus Gysi
    Geschäftshaus Thurgauerstrasse Opfikon
    Opfikon
    Büro- / Gewerbebauten
    None
    2022
    In Planung
    85900
fsp*. Wir bauen nicht für uns.