• News
  • Projekte
    • Galerie
    • Liste
    • Büro- / Gewerbebauten
    • Gesundheitsbauten
    • Industriebauten
    • Schulbauten
    • Spitalbauten
    • Wohnbauten
    • Wettbewerbe
  • Design-Build
  • Firma
  • Team
  • Jobs
  • Whatsnext
  • Publikationen
  • Kontakt
  • Feuerwehr und Werkhof

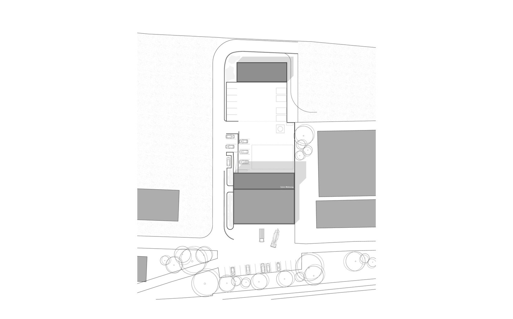
    Ziel: Die Lage am nördlichen Ortsrand von Beinwil ist stark geprägt von der Hangneigung mit einem durchschnittlichen Gefälle in West-Ost Richtung von 10% und der Ausrichtung des Grundstücks gegen den Hallwilersee. In unmittelbarer Nachbarschaft befinden sich verschiedene Gewerbebetriebe, welche direkt an der Industriestrasse gelegen sind. Über eine neu geplante Erschliessungstrasse entlang der südlichen Grundstücksgrenze sollen das Areal und eine weitere, nördlich gelegene Parzelle erschlossen werden.

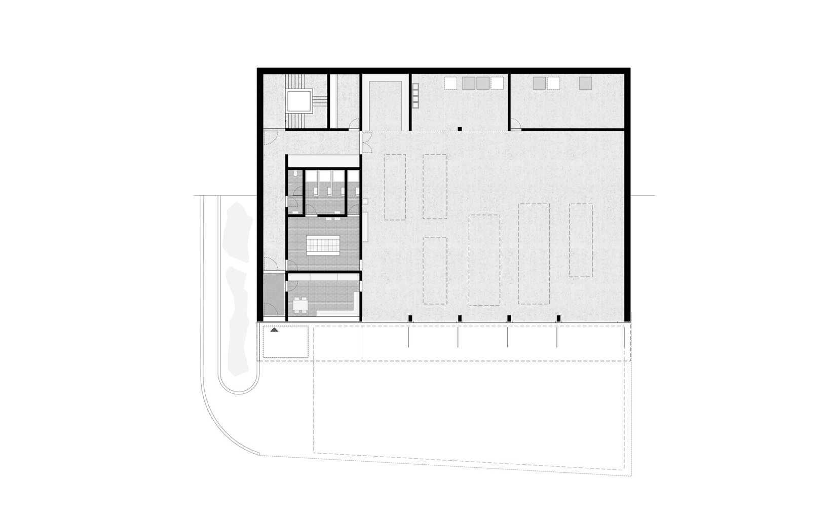
    Problemstellung: Aufgrund der topographischen Situation und der verschiedenen Bedürfnisse von Feuerwehr und Bauamt schlagen wir vor, die unterschiedlichen Nutzungen vertikal übereinander zu stapeln und dabei die Neigung des Grundstücks zur Ausbildung der entsprechenden Vorplätze zu nutzen. Auf diese Weise wird das Grundstück in der Längsrichtung für die verschiedenen Nutzungen zoniert.

    fsp: Entsprechend den funktionalen Anforderungen von Feuerwehr und Bauamt sind die jeweiligen Vorplätze als asphaltierte, befahrbare Vorplätze ausgeführt. Im Niveau EG der Feuerwehr grenzt dieser Vorplatz direkt an die Industriestrasse an. Im Gegensatz dazu steht der grosszügige Vorplatz und Aussenraum des Bauamts, welcher eingezäunt ist. Hier ist der Bereich von der Zufahrt bis zu Halle ebenfalls asphaltiert.

    • Ort: Beinwil am See
    • Kategorie: Büro- / Gewerbebauten
    • Baubeginn: 2017
    • Fertigstellung: 2017
    • Status: Abgeschlossen
    • Gesamtleitung fsp: Ivo Lenherr
    • Projektleitung fsp: Alexander Christen
    • Team fsp: Selim Manjusak
    Feuerwehr und Werkhof
    Beinwil am See
    Büro- / Gewerbebauten
    None
    2017
    Abgeschlossen
    65100
fsp*. Wir bauen nicht für uns.