• News
  • Projekte
    • Galerie
    • Liste
    • Büro- / Gewerbebauten
    • Gesundheitsbauten
    • Industriebauten
    • Schulbauten
    • Spitalbauten
    • Wohnbauten
    • Wettbewerbe
  • Design-Build
  • Firma
  • Team
  • Jobs
  • Whatsnext
  • Publikationen
  • Kontakt
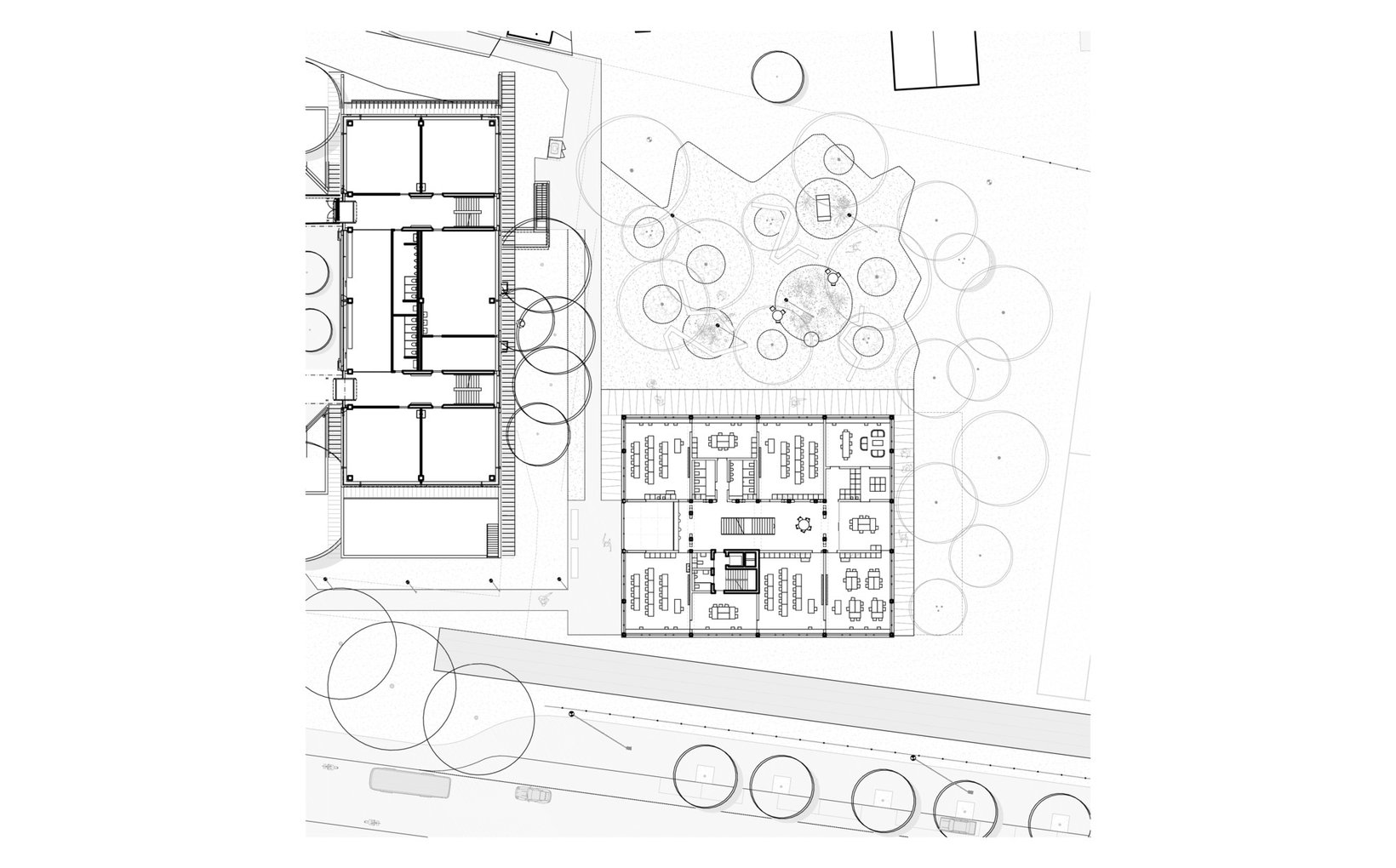
  • Erweiterung Bezirksschule Wettingen

    Ziel: Erweiterung eines bestehenden Schulhausensembles mit Schul- und Werkräumen. Neugestaltung und Erweiterung der Aussenräume.

    Problemstellung: Die Anforderungen an die Erweiterungen sind hochgesteckt: Die Baukosten, die knappe Planungs- und Bauzeit, das Raumprogramm mit diversen Nebenräumen und die verschiedenen Aussenflächen streben nach einem kompakten und flexiblen Gebäude mit geringem Fussabdruck und klarer, einfacher Struktur.

    fsp:  Die bestehenden Schulanlage wird auf der Südseite mit einem kompakten dreigeschossigen Neubau ergänzt. Das kompakte Volumen des Erweiterungsbaus hat den Vorteil des geringen Bedarfs an Landressourcen und damit die Idee, den Ort nachhaltig zu bebauen. Die Einfachheit der Geometrie steht für eine klare und einfache Gebäudestruktur und Konstruktion, mit kurzen inneren Wegen und einer gewünschten Flexibilität. Die Aussenräume säumen sich um das Gebäude. Die Schulräume im Erdgeschoss verbinden sich mit den Aussenplätzen, die eine Erweiterung der Werk- und Handarbeitsräume darstellen.Der vorgegebene enge Terminplan verlangt nach einer teilweise vorgefertigten Konstruktion (Hybridbauweise). Das hybride Platten- Stützen-System (Holz-Beton-Verbund) ermöglicht verschiedene Raumstrukturen und innere Abfolgen. Die klare Gebäudestruktur kann einfach um ein Schulzimmerfeld erweitert werden. Die Flexibilität bleibt vorhanden, interne Rochaden sind immer möglich.

    • Ort: Wettingen
    • Kategorie: Schulbauten
    • Baubeginn:
    • Fertigstellung: 2021
    • Status: Wettbewerb
    • Bauherrschaft: Gemeinde Wettingen
    • Gesamtleitung fsp: Christoph Kaech
    • Projektleitung fsp: Mario Hirt
    • Team fsp: Victor Philip Schaumann
    Erweiterung Bezirksschule Wettingen
    Wettingen
    Schulbauten
    1. Rang 2021
    2021
    Wettbewerb
    88900
fsp*. Wir bauen nicht für uns.