• News
  • Projekte
    • Galerie
    • Liste
    • Büro- / Gewerbebauten
    • Gesundheitsbauten
    • Industriebauten
    • Schulbauten
    • Spitalbauten
    • Wohnbauten
    • Wettbewerbe
  • Design-Build
  • Firma
  • Team
  • Jobs
  • Whatsnext
  • Publikationen
  • Kontakt
  • COOP Megastore

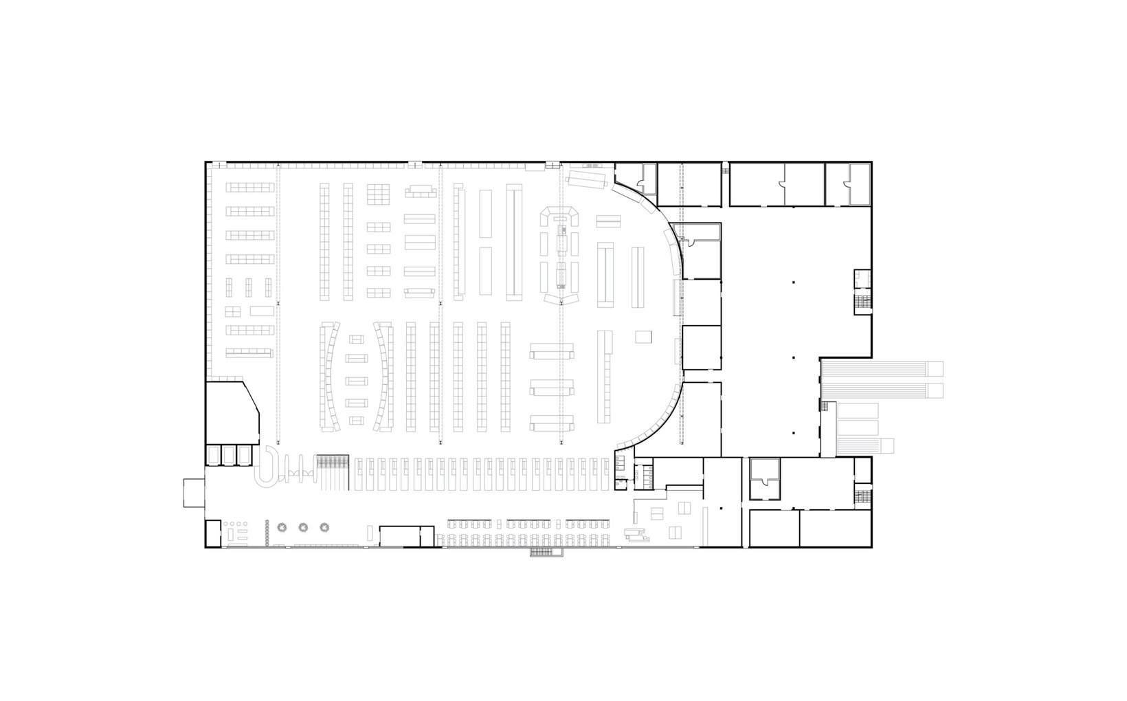
    Ziel: Umbau und Umnutzung einer bestehenden Halle mit möglichst wenig Eingriffen.

    Problemstellung: Die 1973 erstellte Stahlbauhalle der Firma Pestalozzi, ein imposanter Bau mit charakteristischen Shed-Oblichtern, soll umgebaut und mit einem weithin sichtbaren Kubus ergänzt werden.

    fsp: Eingangsdach, die Mall mit Restaurant, die Diensträume und die Anlieferung mit den Umschlagsräumen bilden die sichtbaren neuen Elemente. Die umgenutzte Halle dient nun dem Verkauf entsprechend dem Megastore-Konzept von Coop. Die bestehenden Oblichtbänder, erzeugen ein angenehmes Tageslicht. Bei der Umnutzung und Erweiterung der „Pestalozzi-Halle„ war es fsp ein grosses Anliegen, die bestehenden räumlichen Qualitäten und den Industriecharakter am Geleise zu erhalten, die Neubauvolumen als kubische Elemente anzufügen und dabei die Shedhalle als städtebaulichen Akzent zu erhalten. Aus bestehender Substanz wurde damit ein signifikanter Mehrwert geschaffen.

    • Ort: Dietikon
    • Kategorie: Büro- / Gewerbebauten
    • Baubeginn: 2002
    • Fertigstellung: 2004
    • Status: Realisiert
    • Bauherrschaft: Coop Zentralschweiz – Zürich
    • Gesamtleitung fsp: Markus Schärer
    • Projektleitung fsp: Urs Siegrist
    COOP Megastore
    Dietikon
    Büro- / Gewerbebauten
    None
    2004
    Realisiert
    35300
fsp*. Wir bauen nicht für uns.