• News
  • Projekte
    • Galerie
    • Liste
    • Büro- / Gewerbebauten
    • Gesundheitsbauten
    • Industriebauten
    • Schulbauten
    • Spitalbauten
    • Wohnbauten
    • Wettbewerbe
  • Design-Build
  • Firma
  • Team
  • Jobs
  • Whatsnext
  • Publikationen
  • Kontakt
  • Cilag Microbio Lab B45

    Ziel: Die Cilag AG gehört zu Janssen, der pharmazeutischen Sparte von Johnson & Johnson* und stellt pharmazeutische sowie medizinische Produkte und Wirkstoffe her. Die geplante Aufstockung wirkt dem Platzproblem des Labors entgegen und bietet auch in Zukunft Entwicklungsmöglichkeiten.

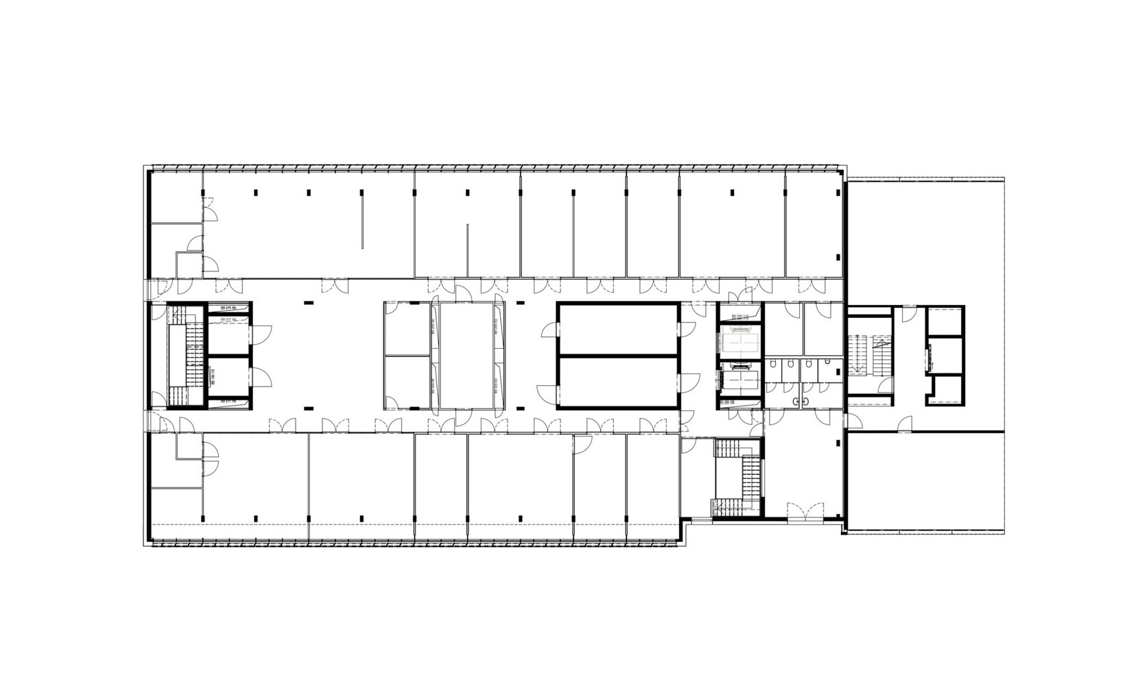
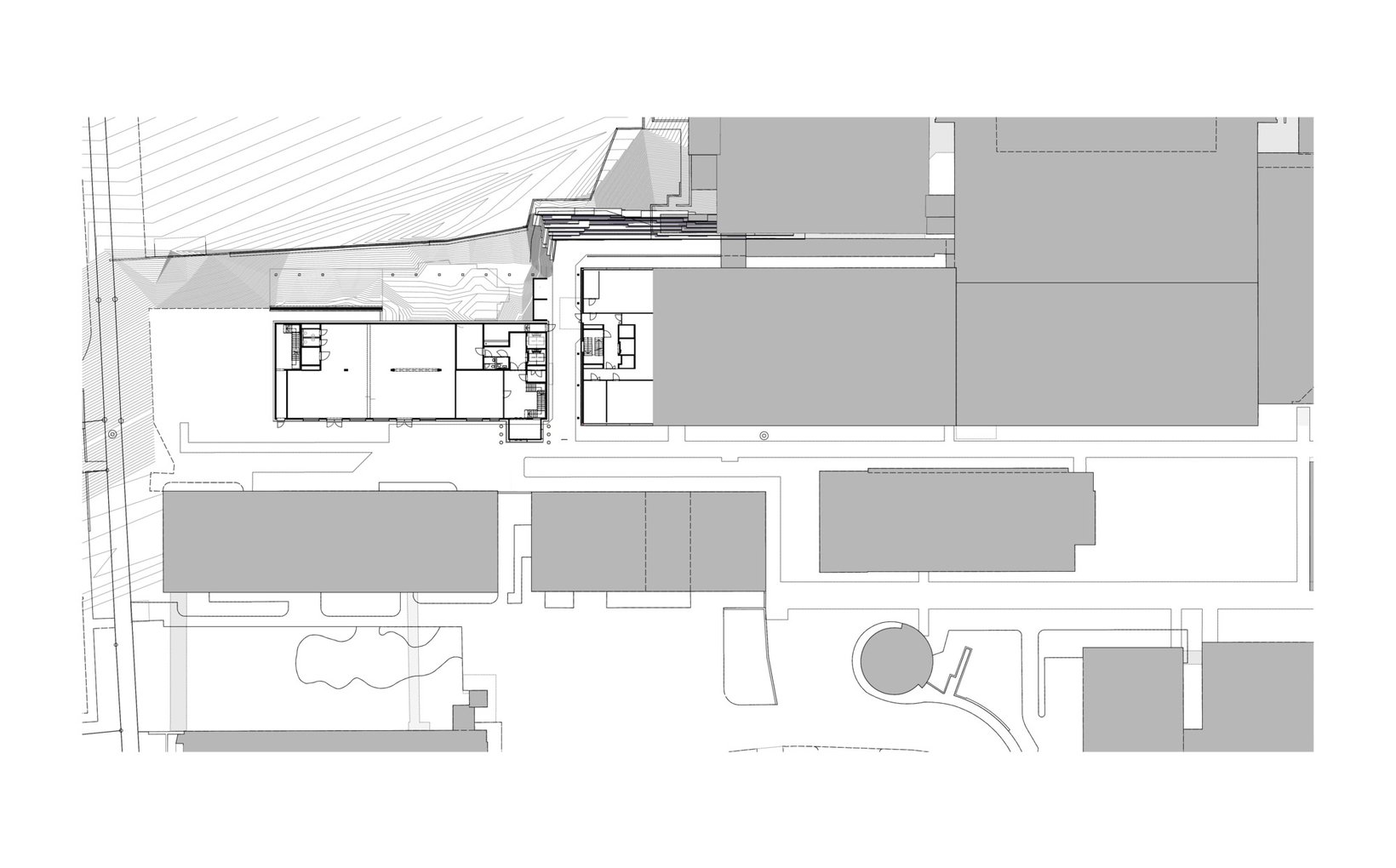
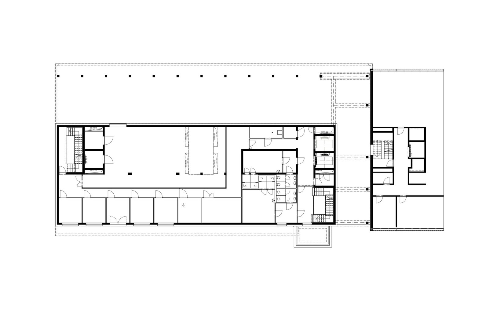
    Problemstellung: Das Gebäude musste so konstruiert werden, dass das dreigeschossige Gebäude später um zwei weitere Geschosse unter laufendem Betrieb aufgestockt werden kann. Die Bauarbeiten wurden durch den notwendigen Felsabbruch direkt neben den bestehenden Laborgebäuden erschwert. Die Laborgeschosse haben flexibel veränderbare Grundrisse. Die vielfältigen Arbeits- und Bewegungszonierungen wurden mit der Wahl von unterschiedlichen Materialien und farblicher Gestaltung geklärt. 

    fsp: Das Laborgebäude B45 wurde bereits 2016 vom Architekturbüro Arcadis aus Holland entworfen und vom Konzern freigegeben. fsp hat das Projekt auf die schweizerischen Normen und Gesetze überprüft und wo nötig angepasst. Auch die Betriebsabläufe wurden zusammen mit der Bauherrschaft reflektiert und baulich optimiert.

    • Ort: Schaffhausen
    • Kategorie: Industriebauten
    • Baubeginn: 2019
    • Fertigstellung: 2020
    • Status: Realisiert
    • Bauherrschaft: Cilag Janssen AG
    • Partner fsp: Markus Schärer, Wiegerinck architectuur stedenbouw Konzept-/Studienarchitekten
    • Gesamtleitung fsp: Jacek Motyl
    • Projektleitung fsp: Katarzyna Kurdziel
    Cilag Microbio Lab B45
    Schaffhausen
    Industriebauten
    1.Rang (TU-Sub mit Implenia)
    2020
    Realisiert
    72700
fsp*. Wir bauen nicht für uns.