• News
  • Projekte
    • Galerie
    • Liste
    • Büro- / Gewerbebauten
    • Gesundheitsbauten
    • Industriebauten
    • Schulbauten
    • Spitalbauten
    • Wohnbauten
    • Wettbewerbe
  • Design-Build
  • Firma
  • Team
  • Jobs
  • Whatsnext
  • Publikationen
  • Kontakt
  • Bürowelt Leuthard

    Ziel: Die Zusammenlegung von zwei Bürostandorten in eine neue, zukunftsorientierte Bürolandschaft neben dem bestehenden Werkhof in Merenschwand.

    Problemstellung: Der Umbau und Aufstockung der bestehenden Lastwagenhalle in Büroräumlichkeiten musste in kürzester Bauzeit ausgeführt werden. Während dem Bau blieben die bestehenden Büros und Werkhof im Betrieb. Das Ziel war nur mit digitaler Planung, der Lean Construction-Methodik und einem hohen Grad an Vorfertigung erreichbar.

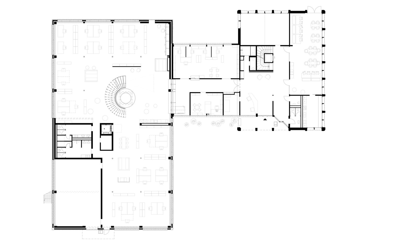
    fsp: Durch intensiven Stakeholder Workshops konnten alle Mitarbeiter der Firma Leuthard an der Projektentwicklung ihrer zukünftigen Räumlichkeiten mitwirken. Um die zukunftsorientierte Vision der Firma Leuthard zu umzusetzen, hat fsp eine innovative Bürolandschaft entwickelt, mit Zonen für Arbeit, Besprechungen, informellen Austausch, Rückzug und Begegnung. Das Herz vom Gebäude ist der neue Marktplatz, welcher mit einer grosszügigen, repräsentativen Wendeltreppe als zentrale Drehscheibe und Infostelle fungiert. In Zusammenarbeit mit Sika wurden die ersten 3d-gedruckten Bauteile der Schweiz im Projekt umgesetzt. Mit Hilfe der Lean Construction Methodik inklusiv wöchentliche Last-Planner Sitzungen, wurde das Gebäude digital geplant, koordiniert, bewilligt und innerhalb von drei und halb Monaten fertiggestellt.

    • Ort: Merenschwand
    • Kategorie: Büro- / Gewerbebauten
    • Baubeginn:
    • Fertigstellung: 2019
    • Status: Realisiert
    • Bauherrschaft: Leuthard AG
    • Gesamtleitung fsp: Ivo Lenherr
    • Projektleitung fsp: Maggie Planchat
    • Team fsp: Alberto Gómez González
    Bürowelt Leuthard
    Merenschwand
    Büro- / Gewerbebauten
    None
    2019
    Realisiert
    77100
fsp*. Wir bauen nicht für uns.