• News
  • Projekte
    • Galerie
    • Liste
    • Büro- / Gewerbebauten
    • Gesundheitsbauten
    • Industriebauten
    • Schulbauten
    • Spitalbauten
    • Wohnbauten
    • Wettbewerbe
  • Design-Build
  • Firma
  • Team
  • Jobs
  • Whatsnext
  • Publikationen
  • Kontakt
  • Aufstockung Lokwerk

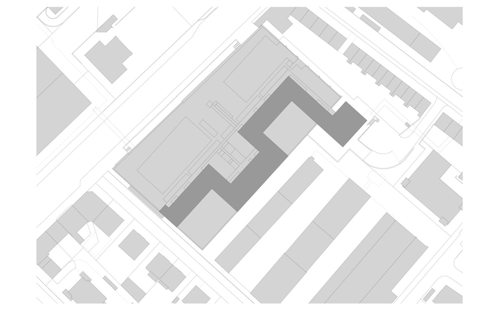
    Ziel: Mehr als 2500 Lokomotiven wurden in der ehemaligen Montage- und Motorenhalle der SLM auf dem Sulzer-Areal gebaut. 2007 erfolgte der Umbau/Neubau des Einkaufszentrum „Lokwerk“. Das Dach des erst 8 Jahre alten 6‘000m2 EZ bildet das „Grundstück“ für eine neue WÜ an attraktiver und zentraler Lage.

    Problemstellung: Ausgangslage bildet ein Gebäudeprofil mit optimaler Tiefe zur Organisation attraktiver und gut belichteter Wohnungen. In weiteren Schritten erfolgt das mehrfache Abknicken zur Generierung von mehr Gebäudelänge.

    fsp: Die Gesamtform vereint eine maximale, spannende Abwicklung mit der Anbindung an das städtische Gefüge. Die Kontur der Figur unterwirft sich konsequent dem unsichtbaren Rasterfeld des darunterliegenden Einkaufszentrums. Auf diesem Raster ist die neue Konstruktion in leichter Holzbauweise konsequent aufgebaut. Die Erschliessung in der Vertikalen erfolgt sinngemäss an der Stelle wo die Figur den städtischen Grund berührt. In der mittleren Einbuchtung des Mäanders erweitert sich der Laubengang zu einer vertikal artikulierten Raumstruktur die bis auf das Dach führt.

    • Ort: Winterthur
    • Kategorie: Wohnbauten
    • Baubeginn: 2021
    • Fertigstellung: 2023
    • Status: Realisiert
    • Bauherrschaft: CREDIT SUISSE AG, Real Estate Investment Management Zürich
    • Gesamtleitung fsp: Ivo Lenherr
    • Projektleitung fsp: Urs Huber
    • Team fsp: Ines Arnau, Tabea Grauwiler, Niklaus Gysi, Kim Dao Tran-Nguyen, Bernhard Meyer
    Aufstockung Lokwerk
    Winterthur
    Wohnbauten
    1. Rang 2016
    2023
    Realisiert
    62100
fsp*. Wir bauen nicht für uns.