• News
  • Projekte
    • Galerie
    • Liste
    • Büro- / Gewerbebauten
    • Gesundheitsbauten
    • Industriebauten
    • Schulbauten
    • Spitalbauten
    • Wohnbauten
    • Wettbewerbe
  • Design-Build
  • Firma
  • Team
  • Jobs
  • Whatsnext
  • Publikationen
  • Kontakt
  • Areal Turuvani

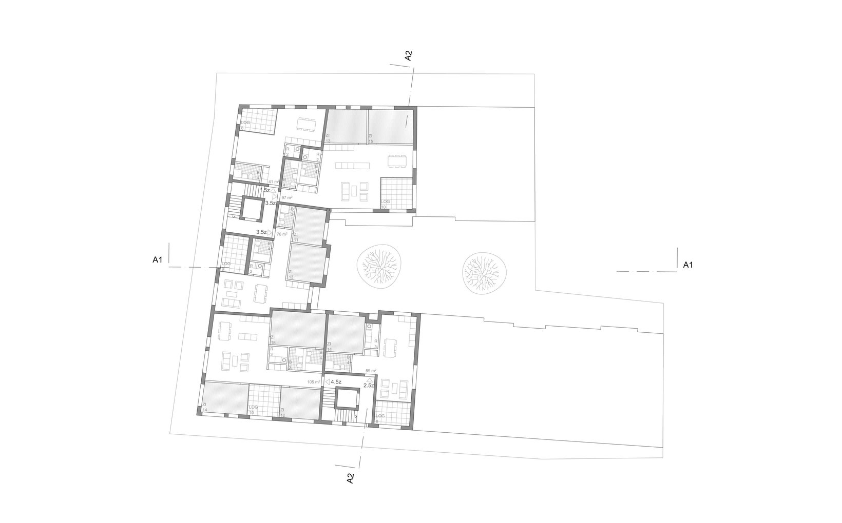
    Ziel: Die vielfältigen und teils widersprüchlichen Rahmenbedingungen bilden die Basis für ein starkes und eigenständiges Konzept. Die (noch) unvollständige Hofrandbebauung zwischen Unterführungsstrasse und Rosengasse wird als „Rumpf“ betrachtet welcher in Richtung des Gleisfeldes einen prägnanten „Kopf“, ein Gesicht erhält.

    Problemstellung: Einerseits ist die Lage bezüglich Erschliessung und Ausblick hervorragend, anderseits bezüglich Lärmimmissionen kritisch, daher liegen die Schlafräume auf der lärmabgewandten Hofseite, von welcher her die Wohnräume natürlich belüftet werden können.

    fsp: Der gedeckte Aussenraum ist mit einer Freitreppe auch an die tieferliegende Unterführungsstrasse angebunden. Das erste Obergeschoss lässt sich einerseits über die zentrale Treppe an der Hauptfront und den halböffentlichen ringförmigen Raum im ersten Obergeschoss erschliessen, anderseits funktioniert der Zugang ebenso über die internen Treppenhäuser. Ab dem zweiten Obergeschoss aufwärts sind die Wohnungen organisiert: Piano nobile.

    • Ort: Olten
    • Kategorie: Büro- / Gewerbebauten
    • Baubeginn:
    • Fertigstellung: 2016
    • Status: Abgeschlossen
    • Gesamtleitung fsp: Christoph Kaech
    • Projektleitung fsp: Bernhard Meyer
    • Team fsp: Ines Arnau, Grigorios Grigoriadis
    Areal Turuvani
    Olten
    Büro- / Gewerbebauten
    2016 3. Rang
    2016
    Abgeschlossen
    62300
fsp*. Wir bauen nicht für uns.