• News
  • Projekte
    • Galerie
    • Liste
    • Büro- / Gewerbebauten
    • Gesundheitsbauten
    • Industriebauten
    • Schulbauten
    • Spitalbauten
    • Wohnbauten
    • Wettbewerbe
  • Design-Build
  • Firma
  • Team
  • Jobs
  • Whatsnext
  • Publikationen
  • Kontakt
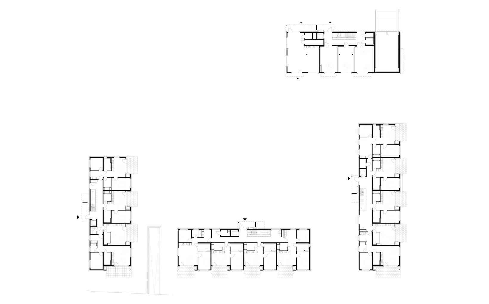
  • Alterswohnungen Schönegg Haus L-O

    Ziel: Ansprechende und zugleich zweckmässige altersgerechte Wohnbauten mit 55 Einheiten und Integration von gesundheitlichen Dienstleistungen.

    Problemstellung: Ein mehrphasiger Massnahmenkatalog mit Um- und Neubauten wird heutigen sowie künftigen Bedürfnissen gerecht. Das bestehende Hochhaus bleibt als städtebauliches Element im Quartier erhalten und wird in die Gesamtkonzeption integriert.

    fsp: Zu dem bereits sanierten Hochhaus werden zwei viergeschossige Neubauten und zwei dreigeschossige Neubauten zu einer hofbildenden Figur gruppiert. Der resultierende Aussenraum bildet einen attraktiv gestalteten Aufenthaltsbereich. Die altersgerechten Wohnungen haben optimale Bezüge zum Aussenraum und bieten abwechslungsreiche, zeitgemässe Grundrisse. Das 9-geschossige Hochhaus wurde in ein Wohnhaus für Seniorinnen und Senioren umgestaltet, wobei eine energetische Verbesserung der Aussenhülle (Minergie) und eine zeitgemässe und auf die umgebenden Neubauten abgestimmte Fassadenplanung erfolgt ist.

    • Ort: Brugg
    • Kategorie: Wohnbauten
    • Baubeginn: 2017
    • Fertigstellung: 2020
    • Status: Realisiert
    • Bauherrschaft: Schönegg Brugg AG
    • Gesamtleitung fsp: Markus Schärer
    • Projektleitung fsp: Niklaus Gysi, Christa Münch
    • Team fsp: Anja Zeller-Sacher
    Alterswohnungen Schönegg Haus L-O
    Brugg
    Wohnbauten
    None
    2020
    Realisiert
    50051
fsp*. Wir bauen nicht für uns.