• News
  • Projekte
    • Galerie
    • Liste
    • Büro- / Gewerbebauten
    • Gesundheitsbauten
    • Industriebauten
    • Schulbauten
    • Spitalbauten
    • Wohnbauten
    • Wettbewerbe
  • Design-Build
  • Firma
  • Team
  • Jobs
  • Whatsnext
  • Publikationen
  • Kontakt
  • ABB Turbo Systems

    Ziel: Beim Gebäudekonzept einerseits rein funktionelle Kriterien, andererseits aber auch die Ansprüche an die Corporate Identity einer weltweit tätigen Firma berücksichtigen.

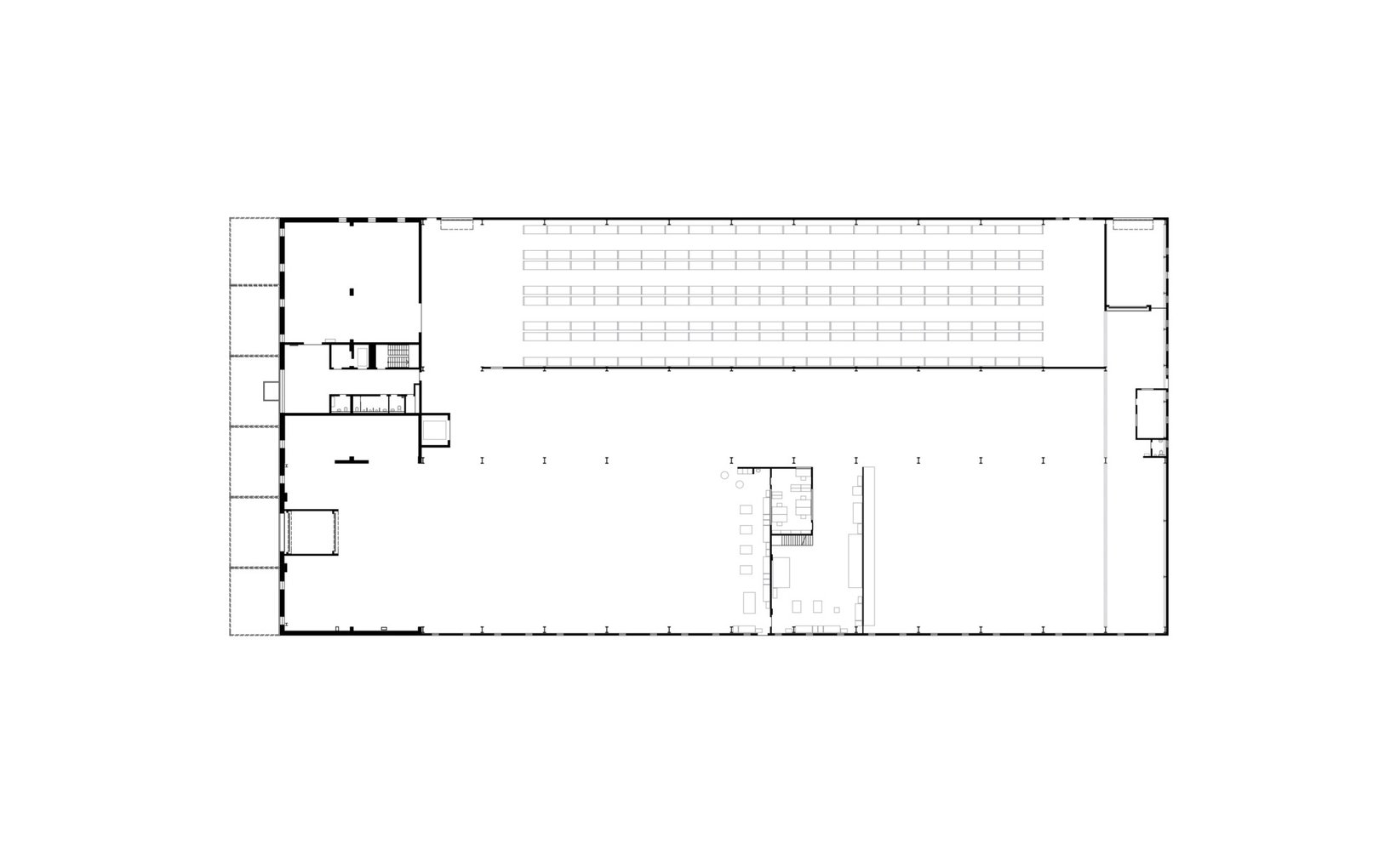
    Problemstellung: ABB Turbocharging ist Weltmarktführer für die Aufladung von Diesel- und Gasmotoren im Leistungsbereich ab 500 Kilowatt. Das Service Center muss optimale Prozessabläufe zwischen den Bereichen Lager, Aufbereitung, Auslieferung sowie Administration und Schulung gewährleisten.

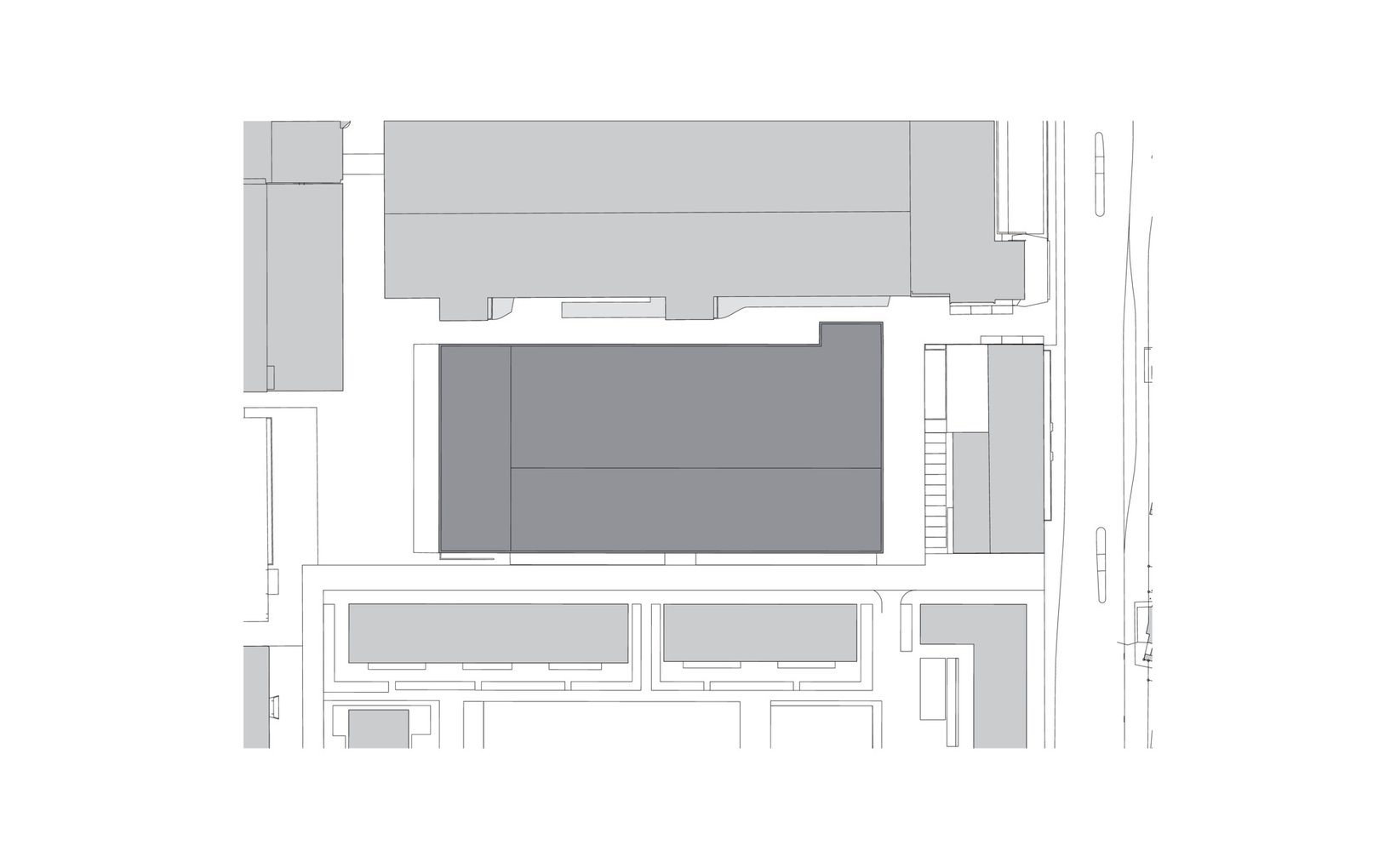
    fsp: Zwei lange Hallen enthalten die Lager- und Betriebsräume. Der vor die westlichen Schmalseiten gestellte Kopfbau für Administration und Schulung bildet den Auftakt der Gesamtanlage. Seine prägnante Front bezieht klar Stellung zum hier entstandenen städtischen Raum. Nicht ganz zufällig erinnern die zwei hochliegenden, mit durchgehenden Fensterfronten versehenen Bürogeschosse an die Kapitänsbrücke eines Frachtschiffes, die dahinterliegenden Werkhallen an dessen Laderaum. Die gestalterische Sorgfalt und Präzision der Details ist eine Referenz an die kostbaren Hightech – Güter im Innern.

    • Ort: Baden
    • Kategorie: Industriebauten
    • Baubeginn: 2002
    • Fertigstellung: 2003
    • Status: Realisiert
    • Bauherrschaft: ABB Immobilien AG
    • Gesamtleitung fsp: William Steinmann
    • Projektleitung fsp: Bernhard Meyer
    • Team fsp: Alain Monnet
    ABB Turbo Systems
    Baden
    Industriebauten
    None
    2003
    Realisiert
    31300
fsp*. Wir bauen nicht für uns.