• News
  • Projekte
    • Galerie
    • Liste
    • Büro- / Gewerbebauten
    • Gesundheitsbauten
    • Industriebauten
    • Schulbauten
    • Spitalbauten
    • Wohnbauten
    • Wettbewerbe
  • Design-Build
  • Firma
  • Team
  • Jobs
  • Whatsnext
  • Publikationen
  • Kontakt
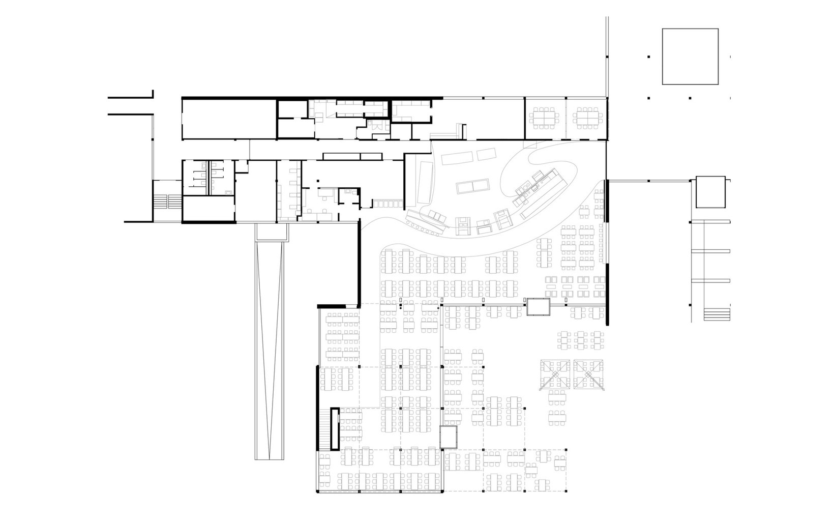
  • ABB Restaurant Baden

    Ziel: Qualitäten aus den Siebzigerjahren erhalten und daraus Neues gestalten.

    Problemstellung: Sterile Grosskantinen zur Verpflegung der werktätigen Masse war gestern. Moderne Personalrestaurants bieten heute nicht nur eine breite Auswahl an gesunden Menus, sondern auch ein ansprechendes Ambiente.

    fsp: Eine solche Umgebung haben wir bei der Neugestaltung des Personalrestaurants «Foodorama» in Dättwil zusammen mit der Betreiberin SV Group geschaffen. Die 980 Mitarbeitenden des ABB-Forschungszentrums geniessen ihre Mittagspause nun in angenehmer Atmosphäre und einer zeitgemässen Möblierung. Der Umbau erfolgte mehrheitlich im bestehenden Volumen. Die Schnittstelle zwischen dem bestehenden Restaurant und dem Pavillon, wurde zur Erweiterung. Sämtliche inneren Oberflächen wurden im Zuge des Umbaus neu gestaltet und mit eingefärbtem Strukturputz ergänzt. Die Interpretation der klassischen Elemente aus den Siebzigerjahren, verschafft dem informellen Treffpunkt eine neue Identität und ist zugleich Aushängeschild für eine Weltfirma.

    • Ort: Baden, Dättwil
    • Kategorie: Büro- / Gewerbebauten
    • Baubeginn:
    • Fertigstellung: 2014
    • Status: Realisiert
    • Bauherrschaft: ABB
    • Gesamtleitung fsp: Ivo Lenherr
    • Projektleitung fsp: Urs Huber
    • Team fsp: Urthe Aust, Jacek Motyl
    ABB Restaurant Baden
    Baden, Dättwil
    Büro- / Gewerbebauten
    None
    2014
    Realisiert
    53600
fsp*. Wir bauen nicht für uns.