• News
  • Projekte
    • Galerie
    • Liste
    • Büro- / Gewerbebauten
    • Gesundheitsbauten
    • Industriebauten
    • Schulbauten
    • Spitalbauten
    • Wohnbauten
    • Wettbewerbe
  • Design-Build
  • Firma
  • Team
  • Jobs
  • Whatsnext
  • Publikationen
  • Kontakt
  • ABB Power Tower WingC

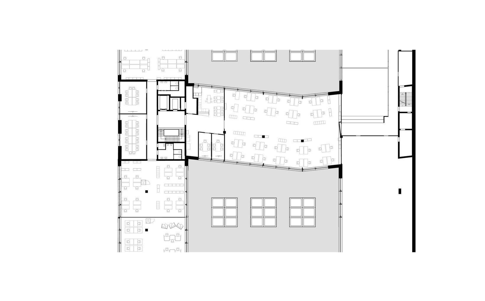
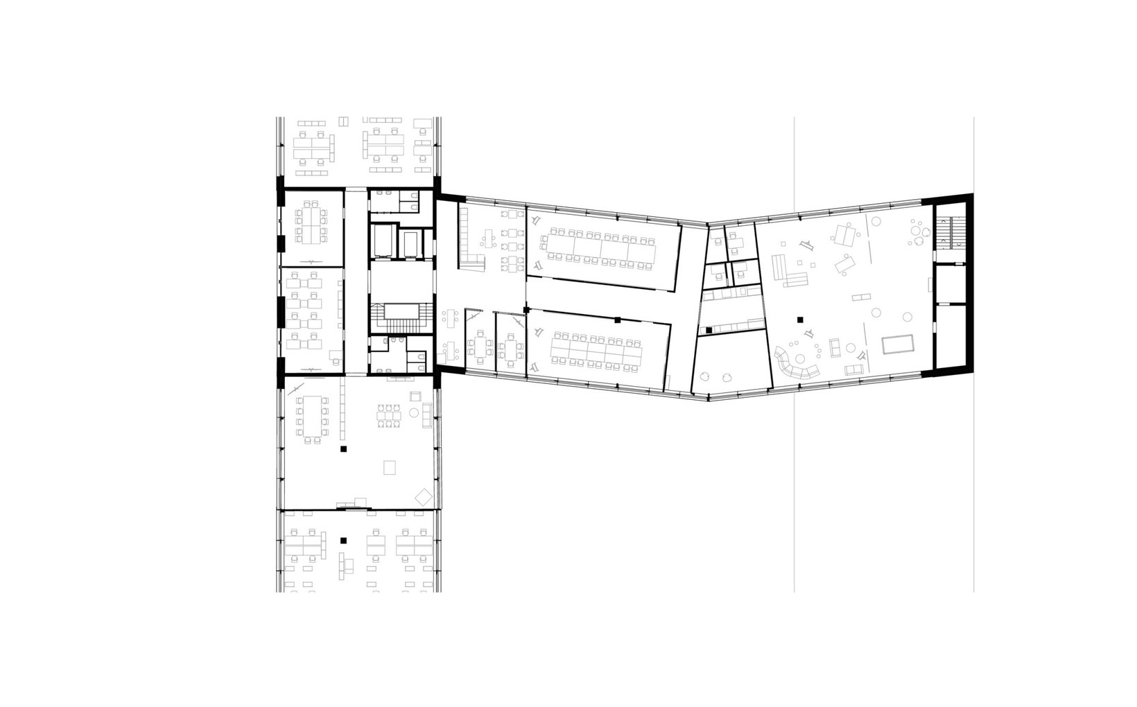
    Ziel: Das Projekt verfolgte das Ziel, die Büroflächen im WING C des ABB Power Towers in Baden umfassend neu zu gestalten und zu modernisieren. Die Arbeitsumgebung sollte den Prinzipien des Workplace 2020 Programms und den ABB Brand Principles entsprechen und ein zukunftsgerichtetes, flexibles sowie inspirierendes Arbeitsumfeld schaffen.

    Problemstellung: Eine zentrale Herausforderung bestand in der Umsetzung eines modernen Raumkonzepts innerhalb eines bestehenden Hochhauses im laufenden Betrieb – inklusive anspruchsvoller Anforderungen an Akustik, Zonierung und Raumflexibilität bei gleichzeitig technischer Infrastrukturbindung.

    fsp: Die architektonische Planung und Umsetzung des Umbaus umfasste fünf Etagen (EG, 1.–3. OG und 5. OG). Basierend auf dem ABB-Arbeitszonenmodell wurde ein hybrides Bürokonzept mit diversen Raumtypen realisiert – darunter Open-Space-Bereiche, Rückzugszonen, Meetingräume, Projektflächen sowie Kaffeeküchen und Servicezonen. Die räumliche Struktur wurde so entwickelt, dass konzentriertes Arbeiten, kreative Zusammenarbeit und spontane Kommunikation gleichermassen möglich sind. Hochwertige Materialien, modulare Einbauten und integrierte AV-Technik gewährleisten eine nachhaltige und funktionale Umgebung. Besonderes Augenmerk galt dabei der harmonischen Integration von Technik, Möblierung und akustischer Wirksamkeit. Das Gestaltungskonzept basiert auf einem neutralen Grundfarbschema mit gezielten farbigen Akzenten, die zur Orientierung und Identifikation beitragen. Das Ergebnis ist eine moderne, agile Arbeitswelt, die den vielfältigen Anforderungen eines global agierenden Technologiekonzerns gerecht wird.


    • Ort: Baden
    • Kategorie: Büro- / Gewerbebauten
    • Baubeginn: 2024
    • Fertigstellung: 2025
    • Status: Realisiert
    • Gesamtleitung fsp: Christoph Kaech
    • Projektleitung fsp: Urs Huber
    • Team fsp: Ursa Moser, James N. Sitthiyot, Till Rüegg
    ABB Power Tower WingC
    Baden
    Büro- / Gewerbebauten
    None
    2025
    Realisiert
    62210
fsp*. Wir bauen nicht für uns.